602 11 Avenue Northeast

Offered at: $3,250,000

MLS®: A2269012

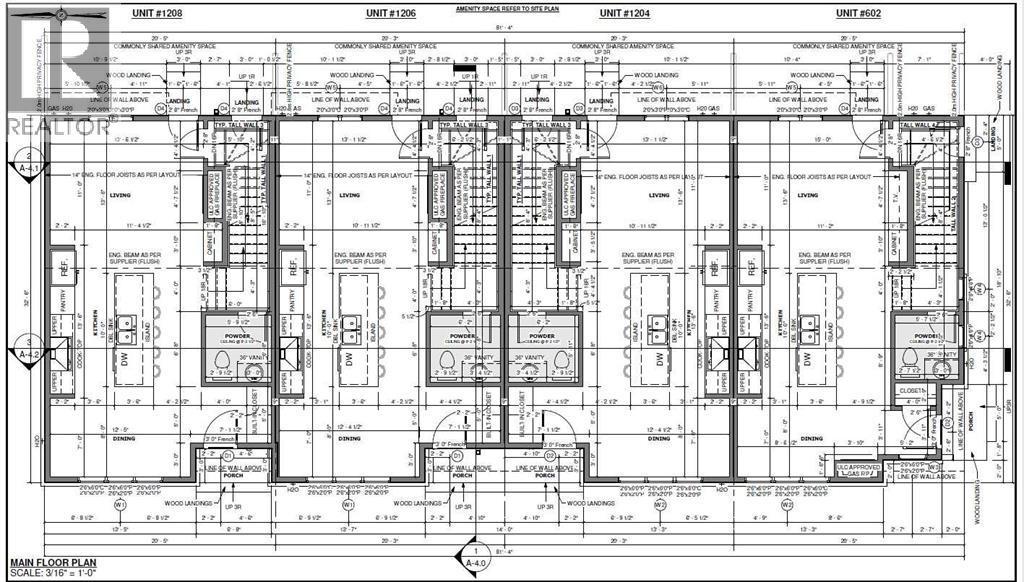
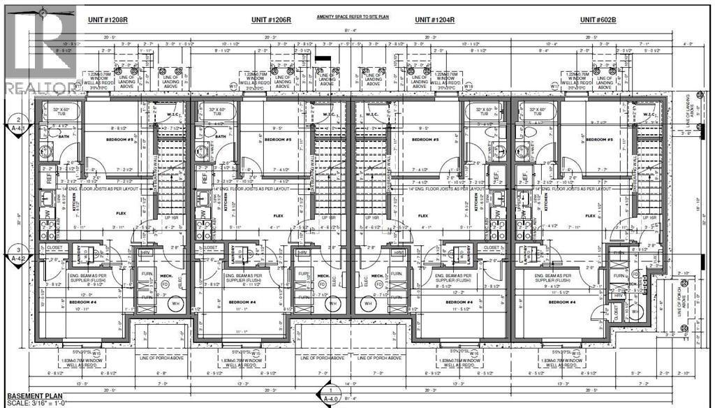
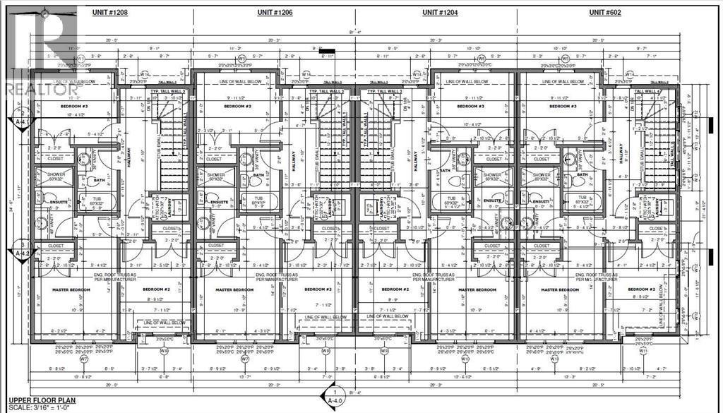
Exceptional Investment Opportunity – Brand-New 4-Plex in Renfrew!Elevate your portfolio with this architecturally striking, purpose-built 4-plex in desirable Renfrew—minutes from downtown Calgary. Each modern townhome features three bedrooms plus a fully legal one-bedroom basement suite, for a total of eight self-contained units, each with private entrances and separate mechanical systems.Built with premium, low-maintenance finishes—stucco, quartz countertops, stainless steel appliances, luxury vinyl plank flooring, and energy-efficient windows—this property offers strong rental appeal and reduced operating costs.Enjoy timeless curb appeal with a cohesive design, professional landscaping, and modern exterior lighting. Close to Deerfoot trail, 16th Ave, transit, parks, and schools, this location ensures consistent demand and excellent returns.Eligible for CMHC’s MLI Select program, offering enhanced financing options.Don’t miss this rare, high-yield multi-family investment—contact us today! Completion in March 2026. (id:6769)

Quick Stats

Key Home Data

0
BATH(S)
BED(S)
5252
SQFT
YES
SHOWING AVAILABLE
Property Type:
Multi-family
Home Ownership:
Freehold

Payment Calculator

Calculate your monthly mortgage payment.

Mortgage Amount
$
Amortization
years
Payment Freq.
Interest Rate
%
Calculating...

All About the Details

See specific details below.

Neighbourhood Statistics

Get to know your neighbourhood.

Similar Properties

Other properties you might like.

Search by Keyword:
« prev 1 2 next »

Request a Showing

Have questions about this property?

Chat Now

Contact Miranda Moser
About This Property.


Office: 403-470-0021