4832 20 Avenue Northwest

Offered at: $3,200,000

MLS®: A2267560

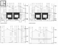
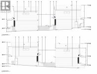
Arriving August 2026 in prime Montgomery, this Modern Courtyard 4-Plex presents a superior 8-unit investment asset comprising four 3-bedroom, 2.5-bathroom upper homes and four 1-bedroom, 1-bathroom legal basement suites complete with full kitchens and in-suite laundry. Purpose-built to qualify for CMHC MLI-Select financing through the Energy Efficiency pathway, this project offers investors favorable terms without the need for rent caps. The innovative duplex-courtyard-duplex layout delivers a quiet, low-density feel with exceptional privacy, abundant natural light, and generous outdoor separation—unique design elements that enhance livability and support higher rental income. Operational management is optimized via a separate mechanical room and full sub-metering, featuring 8 individual gas, water, and electric meters. The exterior includes thoughtfully landscaped outdoor areas designed for functionality and privacy, along with 4 dedicated parking stalls equipped with EV rough-ins. Buyers have the opportunity to customize finishes to preference prior to completion. Located steps from local schools, Shouldice Park, and the Bow River pathways, the property offers fast access to the University of Calgary, Foothills Hospital, and Market Mall, and is under 10 minutes to WinSport and the Trans-Canada Highway for easy mountain getaways, being just 1 hour to Canmore and 1 hour 15 minutes to Banff. (id:6769)

Quick Stats

Key Home Data

0
BATH(S)
BED(S)
4330
SQFT
YES
SHOWING AVAILABLE
Property Type:
Multi-family
Home Ownership:
Freehold

Payment Calculator

Calculate your monthly mortgage payment.

Mortgage Amount
$
Amortization
years
Payment Freq.
Interest Rate
%
Calculating...

All About the Details

See specific details below.

Neighbourhood Statistics

Get to know your neighbourhood.

Similar Properties

Other properties you might like.

Search by Keyword:
« prev 1 2 3 4 next »

Request a Showing

Have questions about this property?

Chat Now

Contact Miranda Moser
About This Property.


Office: 403-470-0021

Please enter a valid first name and last name, e.g., John Smith.