131 Greenwich Heath Northwest

Offered at: $1,950,000

MLS®: A2282431

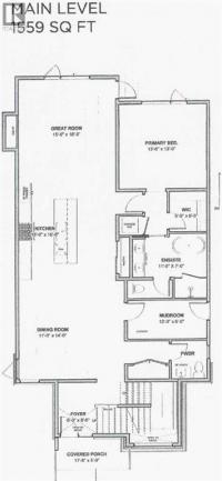
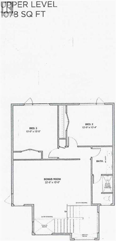
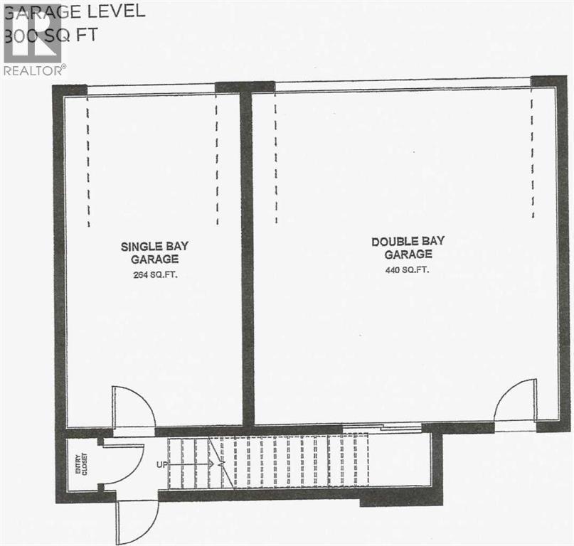
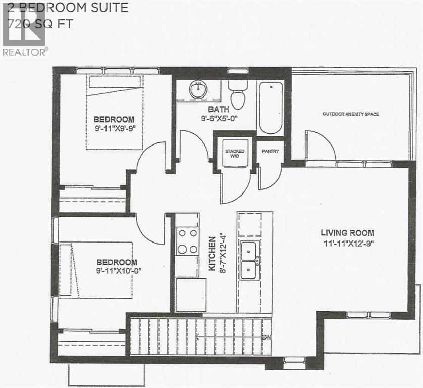
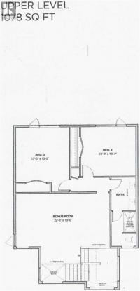
MULTI-GENERATIONAL LIVING/INCOME POTENTIAL! The Nolita II offers 2,637ft2 of well-appointed living space. The main floor features a master bedroom with ensuite, an open concept living area that includes a great room, kitchen, and living room, as well as a generous mudroom. The upper floor includes two additional bedrooms, the main bath, and a spacious bonus room. The fully developed basement of this home includes a finished recreation room and full bathroom for the main house plus a complete 1-bedroom legal suite with a separate entrance. The property also includes a detached triple garage with a 2-bedroom fully finished garden suite above. (legal Suites can be redesigned to make the home 'single-family' living.)As a Custom Concepts’ Personalized Home this home offers the perfect balance of convenience and customization, allowing you to jump-start the build process by approximately six months. The initial design, permitting, foundation, and framing are already completed, so you can begin personalizing at the rough-in stage. If you're looking for a quicker build process and a faster move-in date with the added benefit of tailoring your home to your design preferences, our Personalized Homes might be the perfect choice for you.Upper Greenwich is a distinctive community nestled on the west edge of Calgary – an easy commute to downtown with quick access to the Rocky Mountains. Upper Greenwich is a lovely blend of sophisticated urban living in natural surroundings. Walking paths, sport courts, playgrounds and abundant greenspaces can be enjoyed right outside your front door. The HOA ensures upkeep of the amenities of the community and helps bring people together with seasonal celebrations and neighborhood events. Upper Greenwich is a community that is connected, active and thriving! (id:6769)

Quick Stats

Key Home Data

6
BATH(S)
6
BED(S)
2637
SQFT
YES
SHOWING AVAILABLE
Property Type:
Single Family
Home Ownership:
Freehold

Payment Calculator

Calculate your monthly mortgage payment.

Mortgage Amount
$
Amortization
years
Payment Freq.
Interest Rate
%
Calculating...

All About the Details

See specific details below.

Neighbourhood Statistics

Get to know your neighbourhood.

Similar Properties

Other properties you might like.

Search by Keyword:
« prev 1 2 3 4 5 8 9 10 11 12 next »

Request a Showing

Have questions about this property?

Chat Now

Contact Miranda Moser
About This Property.


Office: 403-470-0021

Please enter a valid first name and last name, e.g., John Smith.