1930 24a Street Southwest

Offered at: $499,900

MLS®: A2292046

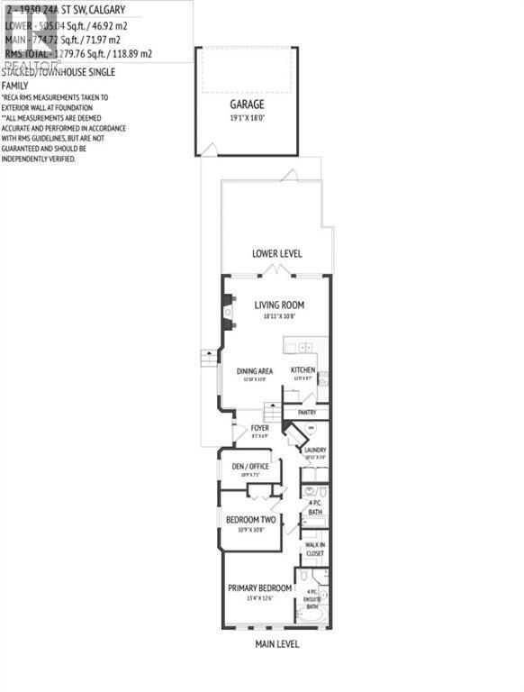
OPEN HOUSE THIS WEEKEND SATURDAY AND SUNDAY 2 to 4pm. Welcome to comfortable inner-city living in the vibrant community of Killarney. This beautifully maintained bungalow-style townhome offers the perfect blend of style, comfort, and convenience in a quiet residential setting, just moments from the energy of 17th Avenue.Freshly painted throughout, the home feels bright and inviting from the moment you step inside. Large windows fill the space with natural light, highlighting the dramatic 12-foot ceilings, luxury vinyl plank and slate flooring, and the warmth of in-floor heating. The open design creates a welcoming flow that’s ideal for both relaxing and entertaining.The kitchen is thoughtfully designed with an eating bar, pantry, new black double sink, and stylish new backsplash, making it both functional and attractive for everyday living. Just off the main living area, step outside to your cozy, private fenced patio—a perfect spot to enjoy a quiet morning coffee or unwind at the end of the day.This spacious home offers over 1,200 sq. ft. of living space with two bedrooms and a versatile den area ideal for a home office. The generous primary bedroom features a walk-in closet and a private ensuite with a jetted soaker tub and separate shower, creating a comfortable retreat. A second full bathroom adds convenience for guests or family.The well-maintained complex consists of only four units and is self-managed, helping keep condo fees low while maintaining pride of ownership throughout.You’ll appreciate the convenience of your garage parking stall at the rear, along with easy access to 17th Avenue, Crowchild Trail, parks, playgrounds, schools, transit, shops, and restaurants.If you’re looking for bright, low-maintenance inner-city living in one of Calgary’s most loved neighbourhoods, this Killarney gem is a must see. BOOK YOUR APPOINTMENT TODAY. Some of the photos have been virtually staged. (id:6769)

Quick Stats

Key Home Data

2
BATH(S)
2
BED(S)
1280
SQFT
YES
SHOWING AVAILABLE
Property Type:
Single Family
Home Ownership:
Condominium/Strata

Payment Calculator

Calculate your monthly mortgage payment.

Mortgage Amount
$
Amortization
years
Payment Freq.
Interest Rate
%
Calculating...

All About the Details

See specific details below.

Neighbourhood Statistics

Get to know your neighbourhood.

Similar Properties

Other properties you might like.

Search by Keyword:
« prev 1 2 3 4 5 484 485 486 487 488 next »

Request a Showing

Have questions about this property?

Chat Now

Contact Miranda Moser
About This Property.


Office: 403-470-0021

Please enter a valid first name and last name, e.g., John Smith.