2920 Kingsview Boulevard Southeast

Offered at: $24

MLS®: A2231218

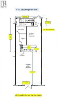
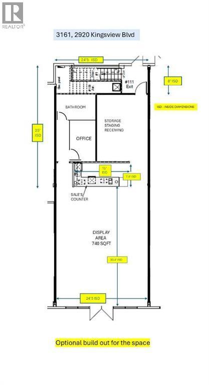
Main floor Commercial Bay for lease including 1475 sqft of open space. There are plenty of opportunities to complete a custom-built space for your business. This unit also comes complete with a washroom, great lighting and a large store front. The current zoning is IB-1 in this mixed-use complex with many classifications for your business including Business Support, Financial Services, Health Care Limited, Office, Public Assembly, Restaurant and many more. There is plenty of parking and great access off the new 40th Ave overpass. Monthly lease cost is Net lease $2950.00 + $263.88 condo fee + $275.00 prop tax =$3488.88 Plus gst, plus utilities, plus internet. (id:6769)

Quick Stats

Key Home Data

0
BATH(S)
BED(S)
1475
SQFT
YES
SHOWING AVAILABLE
Property Type:
Industrial
Home Ownership:
Bare Land Condo

Payment Calculator

Calculate your monthly mortgage payment.

Mortgage Amount
$
Amortization
years
Payment Freq.
Interest Rate
%
Calculating...

All About the Details

See specific details below.

Neighbourhood Statistics

Get to know your neighbourhood.

Similar Properties

Other properties you might like.

Search by Keyword:
« prev 1 2 3 4 5 6 7 next »

Request a Showing

Have questions about this property?

Chat Now

Contact Miranda Moser
About This Property.


Office: 403-470-0021