140 Eston Circle Southeast

Offered at: $519,990

MLS®: A2288311

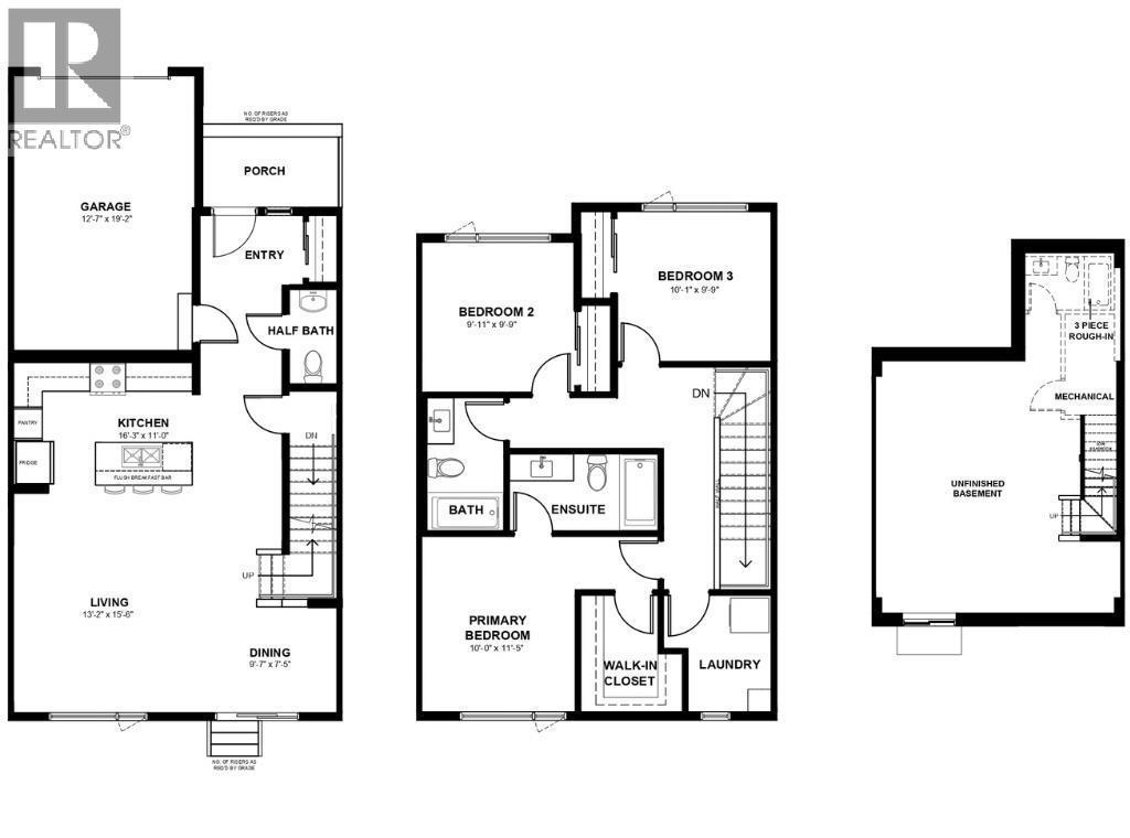
NEW BUILD TOWNHOME | NO CONDO FEES | 3 BED / 2.5 BATH / 1,516 SQ FT | SINGLE ATTACHED GARAGE + DRIVEWAY | POSSESSION Q4 2026 – Welcome to the Sable model by Minto Communities, an award-winning Canadian builder with over 70 years of experience, located in East Hills Crossing, one of southeast Calgary’s fastest-growing and most convenient communities. These thoughtfully designed townhomes feature modern finishes, functional layouts, and long-term value in a location that truly stands out.This unit offers a smart and efficient floor plan designed for everyday comfort. The main floor features a spacious kitchen complete with a kitchen island, stainless steel appliances, and ample cabinetry and storage. The dining area is conveniently located beside the kitchen, flowing seamlessly into the large living space at the back of the home. From here, step outside to your backyard that backs onto green space that is ideal for relaxing or entertaining.Back inside, the front of the home features a spacious foyer, a conveniently tucked-away 2-piece bathroom, and access to your single attached garage.Upstairs, the large primary bedroom includes a walk-in closet and a bright ensuite bathroom. Two additional well-sized bedrooms, a full 4-piece bathroom, and a generous upper-level laundry room complete the second floor.The basement is undeveloped but offers excellent potential for future development, including space for a large recreation room and an additional 3-piece bathroom.Ideally situated directly across from East Hills Crossing Shopping Centre and Costco, this location delivers unmatched convenience with shopping, dining, and everyday services just steps away. Public transit is nearby, offering a quick and easy commute to downtown Calgary. East Hills is a vibrant, well-connected southeast community known for its thoughtful planning, green spaces, pathways, and easy access to major roadways and 17 Avenue SE.Combining modern design, a functional layout, and an unbeatable loc ation, this is an excellent opportunity to secure a brand-new home in East Hills. Don’t miss your chance to be part of this exciting community! Book your showing today! (id:6769)

Quick Stats

Key Home Data

3
BATH(S)
3
BED(S)
1516
SQFT
YES
SHOWING AVAILABLE
Property Type:
Single Family
Home Ownership:
Freehold

Payment Calculator

Calculate your monthly mortgage payment.

Mortgage Amount
$
Amortization
years
Payment Freq.
Interest Rate
%
Calculating...

All About the Details

See specific details below.

Neighbourhood Statistics

Get to know your neighbourhood.

Similar Properties

Other properties you might like.

Search by Keyword:
« prev 1 2 3 4 5 440 441 442 443 444 next »

Request a Showing

Have questions about this property?

Chat Now

Contact Miranda Moser
About This Property.


Office: 403-470-0021

Please enter a valid first name and last name, e.g., John Smith.