410 60 Avenue Northeast

Offered at: $399,900

MLS®: A2287854

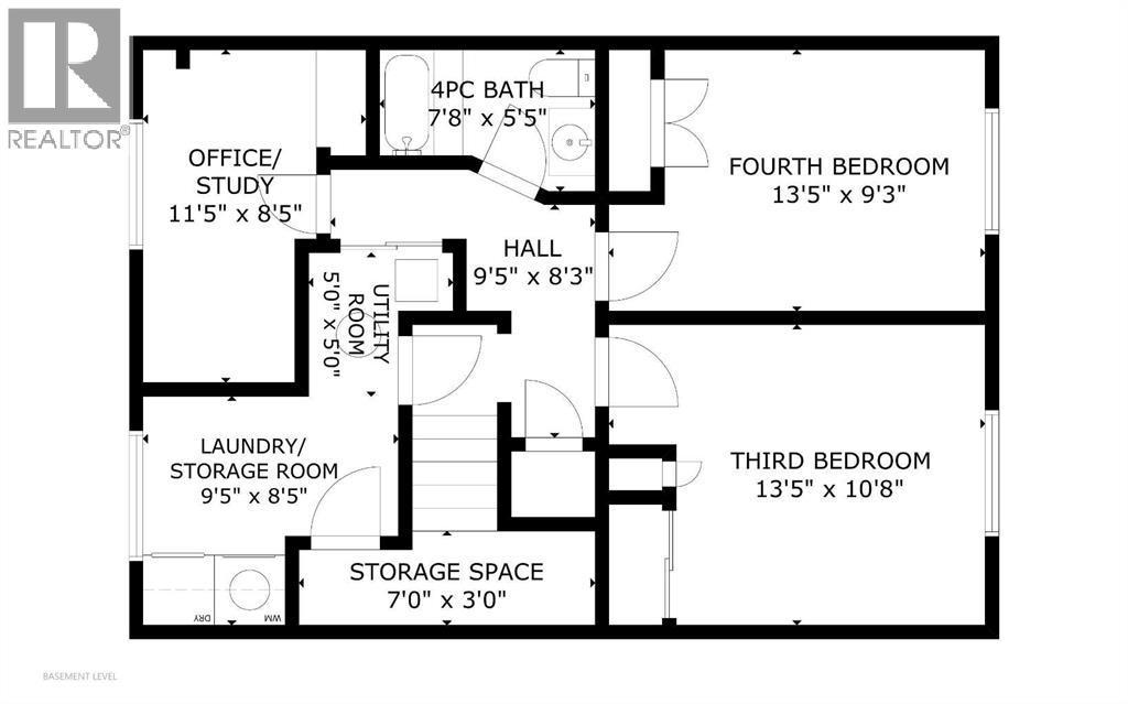
Lovingly cared for by the same owner for 45 years, this well-maintained bi-level half duplex in Thorncliffe offers a wonderful opportunity for first-time buyers and growing families alike. With 4 bedrooms (2 up and 2 down) and 2 full bathrooms, the home provides a functional layout with room to live, work, and grow. The main floor features a spacious living room highlighted by a bright bay window that fills the space with natural light, while the kitchen — complete with oak cabinetry, a brand new electric stove, and its own bay window overlooking the large backyard — offers both charm and practicality. Two comfortable bedrooms and a 4-piece bathroom complete the upper level. Downstairs, you’ll find two additional generous bedrooms, another full bathroom, a dedicated office or den, and a separate laundry room, creating flexible space for guests, teenagers, or a home workspace. Outside, the large and private backyard is a true highlight, complete with a patio, two storage sheds, mature trees and shrubs, and a convenient parking pad, offering plenty of room for kids to play and future potential to build a garage or workshop. Significant energy-efficient upgrades provide peace of mind, including new windows throughout (2023), new roof, eavestroughs, downspouts and fascia (2022), added R50 attic insulation (2024), and a new exterior door and screen door (2025), with the windows and exterior door carrying the balance of a 10-year warranty. Ideally located in the vibrant, family-oriented community of Thorncliffe, with schools, shopping, and everyday amenities close at hand, this is a solid home with lasting value in a well-established neighbourhood. (id:6769)

Quick Stats

Key Home Data

2
BATH(S)
4
BED(S)
704
SQFT
YES
SHOWING AVAILABLE
Property Type:
Single Family
Home Ownership:
Freehold

Payment Calculator

Calculate your monthly mortgage payment.

Mortgage Amount
$
Amortization
years
Payment Freq.
Interest Rate
%
Calculating...

All About the Details

See specific details below.

Neighbourhood Statistics

Get to know your neighbourhood.

Similar Properties

Other properties you might like.

Search by Keyword:
« prev 1 2 3 4 5 401 402 403 404 405 next »

Request a Showing

Have questions about this property?

Chat Now

Contact Miranda Moser
About This Property.


Office: 403-470-0021

Please enter a valid first name and last name, e.g., John Smith.