114 Corner Glen Landing

Offered at: $763,781

MLS®: A2287689

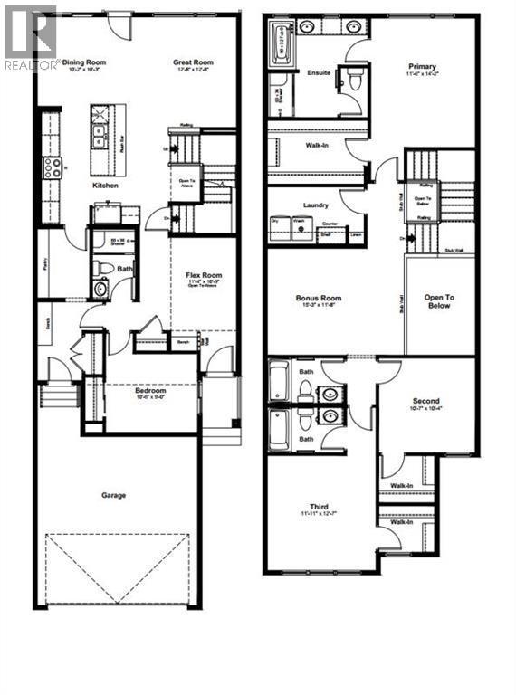
Welcome to 114 Corner Glen Landing NE, a beautifully designed front-garage home located in the vibrant and growing community of Cornerstone. Situated on a zero lot line with a convenient rear paved lane, this thoughtfully planned property offers both functionality and modern comfort, making it an excellent choice for families and investors alike. This Prairie model house price including GST and architectural control allowance, this home delivers exceptional value with premium inclusions throughout. The main floor features a versatile bedroom and full bathroom, ideal for guests, extended family, or multi-generational living. The open-concept layout seamlessly connects the kitchen, dining, and great room, creating a bright and inviting atmosphere perfect for everyday living and entertaining. The kitchen is equipped with stylish finishes and comes complete with Samsung appliances, with an option to add a spice kitchen and side entrance for additional convenience and future flexibility.? Upstairs, the home offers spacious bedrooms, including a well-appointed primary suite with a private ensuite, along with the added benefit of a second upper-floor ensuite—providing comfort and privacy for family members or guests. A bonus room and upper-floor laundry enhance functionality and lifestyle convenience. Exterior features include durable Hardie Board siding and Class 4 impact-resistant shingles, offering long-term protection and peace of mind. The front attached garage provides ample parking and storage, while the rear lane adds additional accessibility. Possession is scheduled upon completion, with an average timeline of approximately 9 to 11 months from purchase. This is a fantastic opportunity to own a brand-new home in one of Calgary’s most sought-after northeast communities, close to future amenities, parks, and major roadways. Don’t miss your chance to secure this exceptional property. (id:6769)

Quick Stats

Key Home Data

4
BATH(S)
4
BED(S)
2426
SQFT
YES
SHOWING AVAILABLE
Property Type:
Single Family
Home Ownership:
Freehold

Payment Calculator

Calculate your monthly mortgage payment.

Mortgage Amount
$
Amortization
years
Payment Freq.
Interest Rate
%
Calculating...

All About the Details

See specific details below.

Neighbourhood Statistics

Get to know your neighbourhood.

Similar Properties

Other properties you might like.

Search by Keyword:
« prev 1 2 3 4 5 273 274 275 276 277 next »

Request a Showing

Have questions about this property?

Chat Now

Contact Miranda Moser
About This Property.


Office: 403-470-0021

Please enter a valid first name and last name, e.g., John Smith.