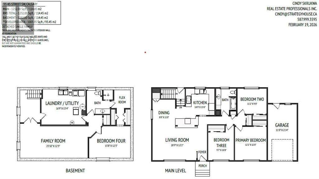
35 45 Street Southwest

Offered at: $915,000

MLS®: A2287636

OPEN HOUSE Saturday, February 21st, 1:00 – 3:00. This is the one you’ve been waiting for! A comfortable and beautifully maintained, 1230 SF bungalow in the best part of Wildwood! This owner-occupied home has been meticulously updated and cared for. The chef’s kitchen with a huge island open to the living room and dining room is the hub of the home. Three well-sized bedrooms on the main floor share a large, modern family bathroom. A large fourth bedroom and full second bathroom downstairs, along with a comfortable family room, fitness nook, and big utility/laundry room, offer plenty more living space. The exterior is clad in Hardie Board siding over R4.5 insulation. Generous, updated windows bring the sunshine in while the front yard boasts a new concrete patio and walkway surrounded by impressive landscaping. A single, oversized attached garage and large front drive offer plenty of parking space, while this generous 70' x 100' property offers plenty of room for the whole family. The large backyard features a generous paving-stone patio and gas BBQ hookup – perfect for summer entertaining. There’s also plenty of additional backyard green space and lush landscaping throughout. You're surrounded by nature and less than two blocks from Wildwood Elementary, the community centre, hockey rink, sports courts, and community garden. With Edworthy Park, the Douglas Fir Trail, and the Edworthy off-leash park a short walk away, and downtown only a 10-minute commute, it’s no wonder Wildwood is such a coveted place to call home. Call to book your showing today! (id:6769)

Quick Stats

Key Home Data

2
BATH(S)
4
BED(S)
1232
SQFT
YES
SHOWING AVAILABLE
Property Type:
Single Family
Home Ownership:
Freehold

Payment Calculator

Calculate your monthly mortgage payment.

Mortgage Amount
$
Amortization
years
Payment Freq.
Interest Rate
%
Calculating...

All About the Details

See specific details below.

Neighbourhood Statistics

Get to know your neighbourhood.

Similar Properties

Other properties you might like.

Search by Keyword:
« prev 1 2 3 4 5 85 86 87 88 89 next »

Request a Showing

Have questions about this property?

Chat Now

Contact Miranda Moser
About This Property.


Office: 403-470-0021

Please enter a valid first name and last name, e.g., John Smith.