54 Cimarron Vista Gardens

Offered at: $429,500

MLS®: A2283936

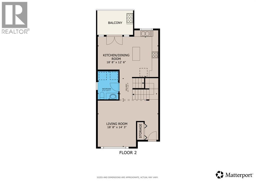
Welcome to this fabulous end-unit townhome offering 3 bedrooms, 2.5 bathrooms, and an attached double garage in the popular community of Cimarron. Beautifully maintained and truly move-in ready, this home features vinyl plank flooring throughout and an ideal layout for everyday living. The main level welcomes you with soaring ceilings, stylish flooring, and a bright, inviting living room—perfect for relaxing at the end of the day. Upstairs, you’ll find a well-designed kitchen with a central island and ample counter space, a spacious dining area, and access to a south-facing balcony—ideal for BBQs and enjoying the sunshine. This level is completed by a convenient 2-piece powder room and laundry with washer and dryer.The upper level offers three generous bedrooms, including a primary suite with a 4-piece ensuite, plus an additional 4-piece main bathroom to accommodate family and guests.On the lower level, enjoy easy access to the attached double garage, along with a partially finished family room offering extra flexible living space.This home faces onto the park within the complex, with a playground just steps away. Ideally located within walking distance to shopping, walking paths, and the Sheep River, this is an excellent opportunity to own a stylish, low-maintenance home in a desirable complex. View the 3D tour! (id:6769)

Quick Stats

Key Home Data

3
BATH(S)
3
BED(S)
1430
SQFT
YES
SHOWING AVAILABLE
Property Type:
Single Family
Home Ownership:
Bare Land Condo/Strata

Payment Calculator

Calculate your monthly mortgage payment.

Mortgage Amount
$
Amortization
years
Payment Freq.
Interest Rate
%
Calculating...

All About the Details

See specific details below.

Neighbourhood Statistics

Get to know your neighbourhood.

Similar Properties

Other properties you might like.

Search by Keyword:
« prev 1 2 3 4 5 334 335 336 337 338 next »

Request a Showing

Have questions about this property?

Chat Now

Contact Miranda Moser
About This Property.


Office: 403-470-0021

Please enter a valid first name and last name, e.g., John Smith.