1118 12 Avenue Southwest

Offered at: $605,000

MLS®: A2280718

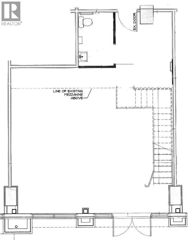
Exceptional main-floor commercial condo located in the heart of the Beltline, one of Calgary’s most vibrant and walkable urban communities, known for its strong daytime and evening foot traffic.Located in the Nova Building, part of a 550-unit condominium complex on 12 Avenue SW, this highly visible unit benefits from a built-in residential customer base and excellent exposure along busy 12 Avenue.The open-concept main floor features dramatic double-height windows, filling the space with natural light and creating an inviting atmosphere. The flexible layout is ideal for retail, office, or professional services. A bright mezzanine-level office overlooks the main floor, providing an open, connected workspace perfect for administrative or consulting use.A prime opportunity for owner-users or investors. Book your showing today. See attached brochure for more details. (id:6769)

Quick Stats

Key Home Data

0
BATH(S)
BED(S)
1173
SQFT
YES
SHOWING AVAILABLE
Property Type:
Other

Payment Calculator

Calculate your monthly mortgage payment.

Mortgage Amount
$
Amortization
years
Payment Freq.
Interest Rate
%
Calculating...

All About the Details

See specific details below.

Neighbourhood Statistics

Get to know your neighbourhood.

Similar Properties

Other properties you might like.

Search by Keyword:
« prev 1 2 3 next »

Request a Showing

Have questions about this property?

Chat Now

Contact Miranda Moser
About This Property.


Office: 403-470-0021

Please enter a valid first name and last name, e.g., John Smith.