520 Reynolds Avenue Southwest

Offered at: $465,000

MLS®: A2280749

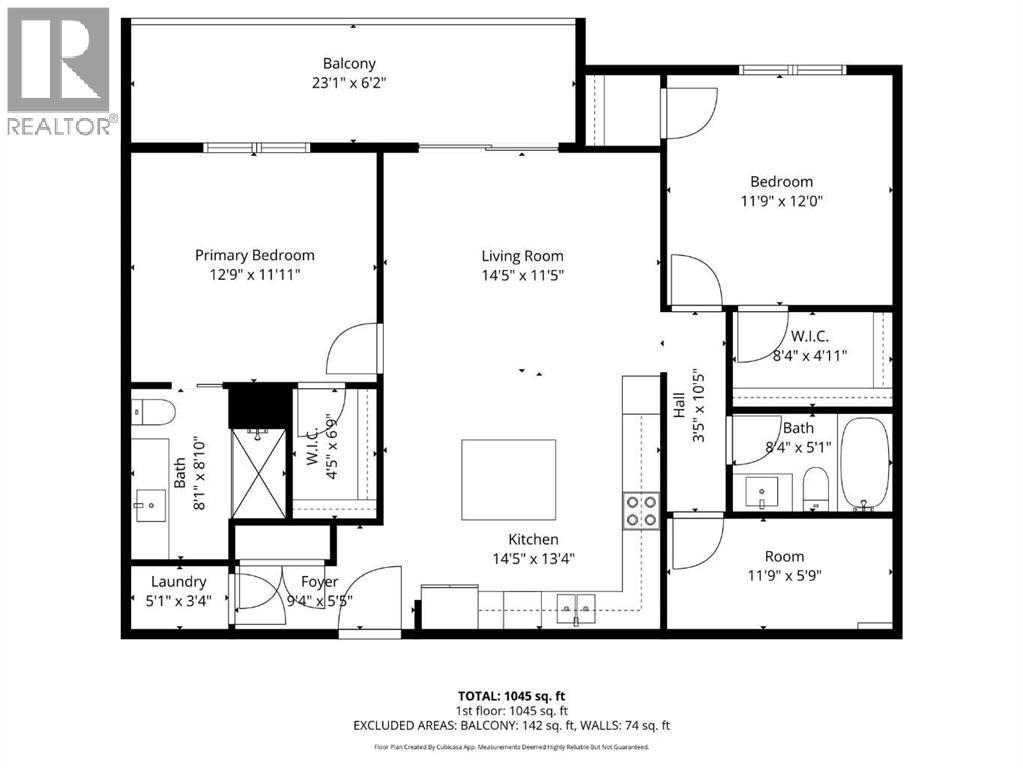
Designed for both comfort and style, this C1 floor plan delivers a well-balanced 2-bedroom, 2-bath plus den layout with an inviting open-concept design. Quartz countertops, luxury vinyl plank flooring, and modern recessed lighting create a clean, contemporary aesthetic, while west-facing windows flood the home with warm natural light. The primary retreat features a walk-in closet and private ensuite, and wall-mounted air conditioning ensures year-round comfort.Life at The Monarch is elevated by an outstanding amenity offering, including a full-service fitness center, yoga studio, boardroom, residents’ lounge, entertaining space with deck and BBQ, two rooftop patios, guest suite, and a convenient dog wash station. Underground parkade parking provides secure and effortless access.Located in the heart of Cooper’s Crossing, just steps from Coopers Promenade, this address places you close to schools, parks, and daily conveniences, with quick connections to 8th Avenue, 40th Avenue, and Highway 2 making the commute to Calgary seamless. A smart opportunity for those seeking low-maintenance, upscale condo living in one of Airdrie’s most established communities. (id:6769)

Quick Stats

Key Home Data

2
BATH(S)
2
BED(S)
1048
SQFT
YES
SHOWING AVAILABLE
Property Type:
Single Family
Home Ownership:
Condominium/Strata

Payment Calculator

Calculate your monthly mortgage payment.

Mortgage Amount
$
Amortization
years
Payment Freq.
Interest Rate
%
Calculating...

All About the Details

See specific details below.

Neighbourhood Statistics

Get to know your neighbourhood.

Similar Properties

Other properties you might like.

Search by Keyword:
« prev 1 2 3 4 5 402 403 404 405 406 next »

Request a Showing

Have questions about this property?

Chat Now

Contact Miranda Moser
About This Property.


Office: 403-470-0021

Please enter a valid first name and last name, e.g., John Smith.