33 Heritage Park

Offered at: $899,000

MLS®: A2274513

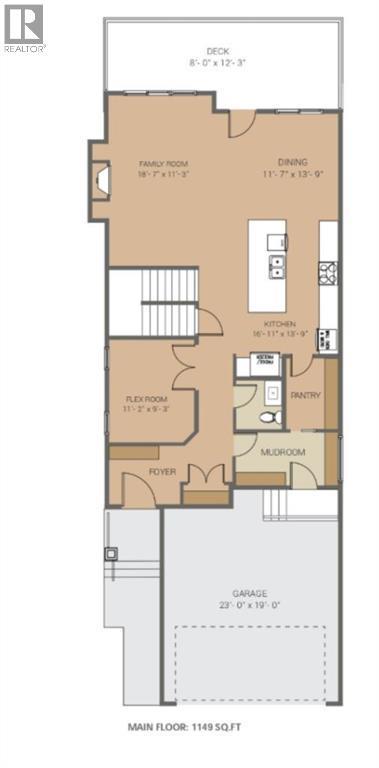
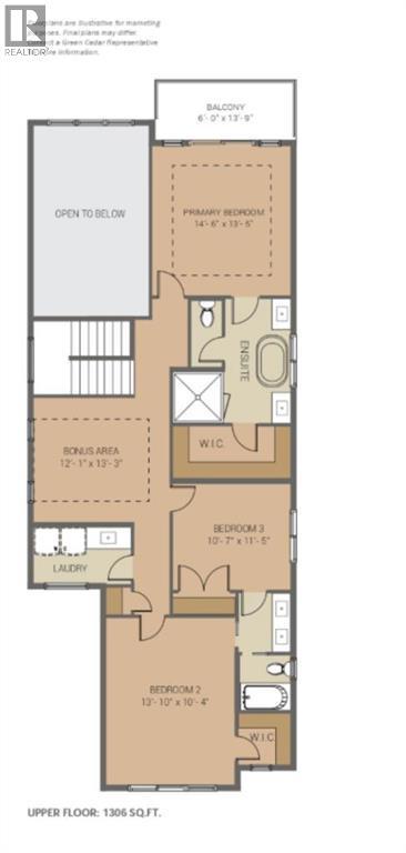
This home is currently under construction. Photos are for representation purposes only and are not of the actual property. Finishes, features, and specifications may vary.Discover the perfect blend of character and modern design in this Contemporary Craftsman–style home, thoughtfully designed to maximize light, comfort, and scenic surroundings. Backing onto green space with partial mountain views, this residence offers a peaceful setting paired with refined finishes and functional living spaces.The main and upper levels feature three well-appointed bedrooms and 2.5 bathrooms, ideal for families or professionals seeking a stylish yet practical layout. An enhanced lighting package throughout the home creates a bright, inviting atmosphere, highlighting the craftsmanship and architectural details at every turn.Upstairs, the secondary bedrooms are connected by a Jack & Jill bathroom, offering both privacy and convenience, while the primary bedroom provides a comfortable retreat designed for everyday living.The walk-out basement, currently undeveloped, presents endless potential to customize additional living space—whether for a recreation area, home gym, media room, or future guest suite—while maintaining direct access to the backyard and natural surroundings.With its Contemporary Craftsman aesthetic, scenic backdrop, and opportunity for future expansion, this home offers a rare combination of style, setting, and versatility—perfectly suited for modern living. (id:6769)

Quick Stats

Key Home Data

3
BATH(S)
3
BED(S)
2442
SQFT
YES
SHOWING AVAILABLE
Property Type:
Single Family
Home Ownership:
Freehold

Payment Calculator

Calculate your monthly mortgage payment.

Mortgage Amount
$
Amortization
years
Payment Freq.
Interest Rate
%
Calculating...

All About the Details

See specific details below.

Neighbourhood Statistics

Get to know your neighbourhood.

Similar Properties

Other properties you might like.

Search by Keyword:
« prev 1 2 3 4 5 132 133 134 135 136 next »

Request a Showing

Have questions about this property?

Chat Now

Contact Miranda Moser
About This Property.


Office: 403-470-0021

Please enter a valid first name and last name, e.g., John Smith.