171 Deerfield Drive Southeast

Offered at: $329,900

MLS®: A2278339

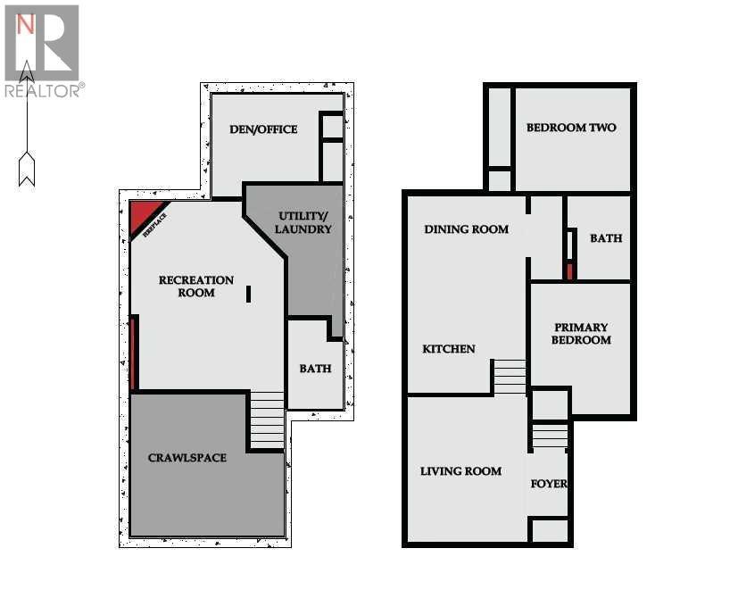
*** LOCATION, LOCATION, LOCATION *** Backing green-space with Deer Run Elementary School within a short walk around the corner*** 3 bedroom + 2 full-bath townhome with sunny south-west exposure backing directly onto mature treed greenspace with walking trails to Fish Creek Park. Views of the green-space from the spacious dining room, primary bedroom and back deck. The kitchen has been renovated with painted wood cabinets, subway tiled back-splash, quartz counters and updated plumbing fixtures and sink. Two generous-sized bedrooms off the kitchen both have hardwood floors and share a full bath with new flooring. The main level living room has vaulted ceilings, hardwood floors and a large south-west facing window for lots of natural light. The lower level is fully finished and features a large family room with charming gas fireplace, third bedroom and second full bathroom. A crawlspace with ample in-suite storage and separate laundry room completes the lower level. The private yard is fenced and perfect for the kids to play. Well maintained with some fresh paint, new doorknobs and hardware. Check out the floor plan in the photos! ***AMAZING LOCATION, close to schools, shopping, public transportation and additional street parking. Shows 10/10..!!! (id:6769)

Quick Stats

Key Home Data

2
BATH(S)
3
BED(S)
778
SQFT
YES
SHOWING AVAILABLE
Property Type:
Single Family
Home Ownership:
Condominium/Strata

Payment Calculator

Calculate your monthly mortgage payment.

Mortgage Amount
$
Amortization
years
Payment Freq.
Interest Rate
%
Calculating...

All About the Details

See specific details below.

Neighbourhood Statistics

Get to know your neighbourhood.

Similar Properties

Other properties you might like.

Search by Keyword:
« prev 1 2 3 4 5 360 361 362 363 364 next »

Request a Showing

Have questions about this property?

Chat Now

Contact Miranda Moser
About This Property.


Office: 403-470-0021