1930 36 Street Southwest

Offered at: $614,990

MLS®: A2276885

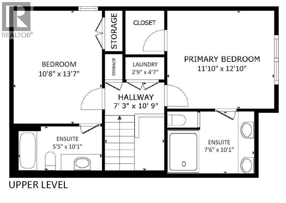
Well maintained, modern, and quiet 2-storey townhome offering nearly 2,000 sq ft of developed living space in the heart of Killarney. This 3-bedroom, 3.5-bath home features 2 bedrooms up and 1 down. The primary bedroom offers high ceilings, double sinks, a spacious shower, and walk-in closet. The second upstairs bedroom includes its own ensuite, plus convenient second-floor laundry.Fully developed basement with a large third bedroom, 4-piece bathroom, and second living room—ideal for guests or a home office. Recent updates include new flooring, fresh paint, and updated light fixtures. Features include a double-sided fireplace between the living and dining rooms, quartz countertops, gas range, stainless steel appliances, and ample storage.Low condo fees, single detached garage, and an excellent inner-city location—just a 3-minute walk to the LRT for an easy commute downtown, with quick access to 17 Ave, Crowchild Trail, transit, and local amenities. (id:6769)

Quick Stats

Key Home Data

4
BATH(S)
3
BED(S)
1301
SQFT
YES
SHOWING AVAILABLE
Property Type:
Single Family
Home Ownership:
Condominium/Strata

Payment Calculator

Calculate your monthly mortgage payment.

Mortgage Amount
$
Amortization
years
Payment Freq.
Interest Rate
%
Calculating...

All About the Details

See specific details below.

Neighbourhood Statistics

Get to know your neighbourhood.

Similar Properties

Other properties you might like.

Search by Keyword:
« prev 1 2 3 4 5 398 399 400 401 402 next »

Request a Showing

Have questions about this property?

Chat Now

Contact Miranda Moser
About This Property.


Office: 403-470-0021

Please enter a valid first name and last name, e.g., John Smith.