6 Ranchers Meadows

Offered at: $898,900

MLS®: A2274983

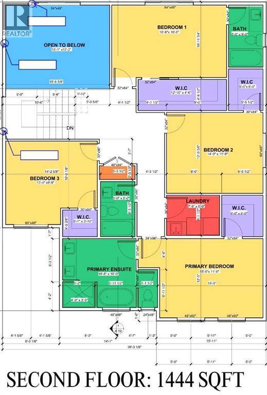
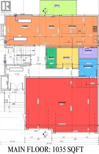
Discover the epitome of custom luxury in the prestigious aviation community of Air Ranch, Okotoks. Situated on a prime lot backing directly onto the private airstrip, this expansive 2,400+ sq. ft. open to below concept residence offers that feeling of space and light throughout the home. The interior offers a unique opportunity for you to personalize your selections on the interior based off the packages provided to your exact liking. Designed for both grandeur and functionality, this plan features an exterior side entrance, a triple car garage, 3.5 bathrooms, and 4 spacious bedrooms, where notably, every single room features its own walk-in closet. The layout is exceptionally flexible; Bedroom 2 as shown in the plans has the option of being knocked out and added as a bonus room to better suit your lifestyle. Enjoy the tranquility of estate living combined with ultimate convenience, with an UPCOMING shopping plaza just a 8-minute walk away. (id:6769)

Quick Stats

Key Home Data

4
BATH(S)
4
BED(S)
2479
SQFT
YES
SHOWING AVAILABLE
Property Type:
Single Family
Home Ownership:
Freehold

Payment Calculator

Calculate your monthly mortgage payment.

Mortgage Amount
$
Amortization
years
Payment Freq.
Interest Rate
%
Calculating...

All About the Details

See specific details below.

Neighbourhood Statistics

Get to know your neighbourhood.

Similar Properties

Other properties you might like.

Search by Keyword:
« prev 1 2 3 4 5 93 94 95 96 97 next »

Request a Showing

Have questions about this property?

Chat Now

Contact Miranda Moser
About This Property.


Office: 403-470-0021

Please enter a valid first name and last name, e.g., John Smith.