109 Yorkstone Heights Southwest

Offered at: $492,990

MLS®: A2274594

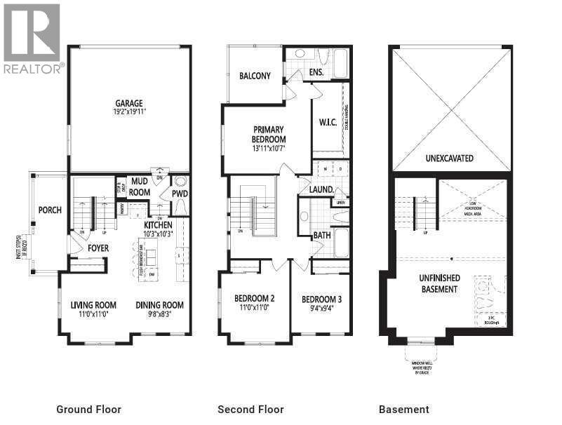
The Windsor Corner is designed for comfort from the moment you step foot onto the large front porch. Sitting on a corner lot, with an extra-large lot and private entry. Entering the welcoming foyer, discover a spacious quartz kitchen featuring a flush quartz breakfast bar where you’ll love starting your day. Whether you’re hosting a dinner party or movie night, this open-concept main floor lets you seamlessly entertain. Tucked behind your kitchen are a powder room and mudroom, leading you to a door to access the double car garage. Never dread laundry day again with a second-floor laundry room, with a linen closet and full bath alongside bedrooms 2 and 3. Enjoy the views in your primary bedroom when you step out on your own private balcony. Discover a huge double hanging walk-in closet that lets you keep your wardrobe organized, and an ensuite. Enjoy no condo fees and 8 solar panels with a Mattamy townhome. *Photos and virtual tour are representative. (id:6769)

Quick Stats

Key Home Data

3
BATH(S)
3
BED(S)
1479
SQFT
YES
SHOWING AVAILABLE
Property Type:
Single Family
Home Ownership:
Freehold

Payment Calculator

Calculate your monthly mortgage payment.

Mortgage Amount
$
Amortization
years
Payment Freq.
Interest Rate
%
Calculating...

All About the Details

See specific details below.

Neighbourhood Statistics

Get to know your neighbourhood.

Similar Properties

Other properties you might like.

Search by Keyword:
« prev 1 2 3 4 5 436 437 438 439 440 next »

Request a Showing

Have questions about this property?

Chat Now

Contact Miranda Moser
About This Property.


Office: 403-470-0021

Please enter a valid first name and last name, e.g., John Smith.