64 Copperstone Gardens Southeast

Offered at: $539,000

MLS®: A2273900

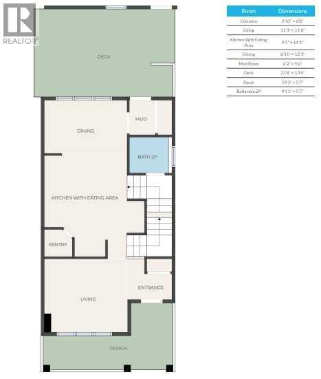
This beautiful home begins with a charming front porch that adds to its curb appeal. Inside, the main floor features hardwood floors, an abundance of natural light and a large separate living room with a gas fireplace and an oversized front window. The kitchen is every home chef’s dream, featuring stainless steel appliances, including a new dishwasher installed in 2021, an oversized island, and lots of full-height cabinets as well as a pantry for additional storage. The dining area sits just off the kitchen at the back of the house and features another oversized window along with easy access to the backyard. The oversized windows at both the front and back of the home create a bright space filled with a lot of natural light and sunshine.Upstairs, the primary bedroom is a relaxing retreat with a feature wall, walk-in closet and a private 3-piece ensuite. Two additional bedrooms on this level are both bright and generously sized and share a large 4-piece bathroom.The basement is framed and ready for your development, giving you the ability to create the additional space you need, and yes it includes a bathroom rough-in.Outside, the low maintenance backyard features an oversized deck and is privately tucked between the house and double detached garage.Recent updates include a new furnace in 2022 and a new water heater in 2023.Ideally located within walking distance to parks, local schools, community centre and other amenities nearby. You are also close to shopping and restaurants in Mahogany, 130th Avenue and McKenzie Towne. This is a well cared for home in a fantastic family friendly location, don’t delay and book your showing today! (id:6769)

Quick Stats

Key Home Data

3
BATH(S)
3
BED(S)
1364
SQFT
YES
SHOWING AVAILABLE
Property Type:
Single Family
Home Ownership:
Freehold

Payment Calculator

Calculate your monthly mortgage payment.

Mortgage Amount
$
Amortization
years
Payment Freq.
Interest Rate
%
Calculating...

All About the Details

See specific details below.

Neighbourhood Statistics

Get to know your neighbourhood.

Similar Properties

Other properties you might like.

Search by Keyword:
« prev 1 2 3 4 5 523 524 525 526 527 next »

Request a Showing

Have questions about this property?

Chat Now

Contact Miranda Moser
About This Property.


Office: 403-470-0021