164 Wolf River Drive Southeast

Offered at: $734,900

MLS®: A2273998

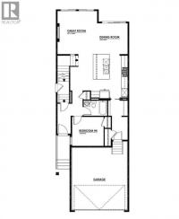
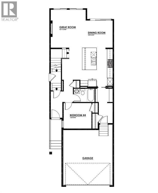
** OPEN HOUSE ALERT SATURDAY at 12:00 noon to 3:00 PM ** 164 Wolf River Drive SE will be sure to impress! **JAYMAN CERTIFIED KARMA 24 FLOOR PLAN** Boasting 2279+ square feet of gorgeous upgraded Fit and Finish design and décor that will appeal to the most discerning buyer. Immediately upon entering, you are invited into an open floor plan that exudes beauty. Seamlessly transitioning to the 4TH BEDROOM and FULL BATH, could easily be your Den/Home Office. The main floor plan opens up to showcase a stunning, oversized, Elegant White Quartz island framed by the same stunning quartz countertops around the perimeter. Boasting stunning Glacier White cabinets, stylish chrome hardware, soft-close drawers, and a beautiful full tile backsplash, the kitchen will check off all your boxes. Sleek stainless steel KitchenAid appliance package includes a 36" gas cooktop, built-in wall oven with convection microwave, French door refrigerator with water dispenser and ice maker, dishwasher with stainless steel interior and Broan power pack built-in hood fan with designer shroud. Complimenting the main floor, you will discover Divine Maestro Forte laminate flooring throughout, with 12x24 Divine Luxury Vinyl tile in the Main Bath, en suite, and laundry. To complete this outstanding main-floor area design, you will also find a cozy electric fireplace and a sliding glass patio door that will lead you out to your future backyard. The upper level features a centralized Bonus Room with a tray ceiling, along with three more sizeable bedrooms, with the primary suite offering a 5-piece 'spa-like' en suite. Dual vanities, oversized soaker tub, stand-alone shower, and a spacious walk-through closet to the 2nd-floor laundry for ease of access. Excellent design for the busy family. James Hardie board on the front exterior, along with the elevated contemporary prairie elevation and EXTRA Fit & FINISH. Enjoy the DOUBLE FRONT ATTACHED GARAGE and CONVENIENT SIDE ENTRANCE. Wolf Willow is a highly sought-a fter community located in the Bow River Valley adjacent to the Blue Devil Golf Course. Breath-taking and inspiring with plans to include parks, schools and additional amenities, Wolf Willow offers 9km of pathways alone. Not to mention the abundance of trails surrounding the neighbourhood. A quiet retreat allowing you to enjoy nature's best while being close to the big city amenities and quick access to McLeod Trail and 22X. Welcome Home! (id:6769)

Quick Stats

Key Home Data

3
BATH(S)
4
BED(S)
2280
SQFT
YES
SHOWING AVAILABLE
Property Type:
Single Family
Home Ownership:
Freehold

Payment Calculator

Calculate your monthly mortgage payment.

Mortgage Amount
$
Amortization
years
Payment Freq.
Interest Rate
%
Calculating...

All About the Details

See specific details below.

Neighbourhood Statistics

Get to know your neighbourhood.

Similar Properties

Other properties you might like.

Search by Keyword:
« prev 1 2 3 4 5 335 336 337 338 339 next »

Request a Showing

Have questions about this property?

Chat Now

Contact Miranda Moser
About This Property.


Office: 403-470-0021