3815 9 Street Southwest

Offered at: $1,875,000

MLS®: A2273946

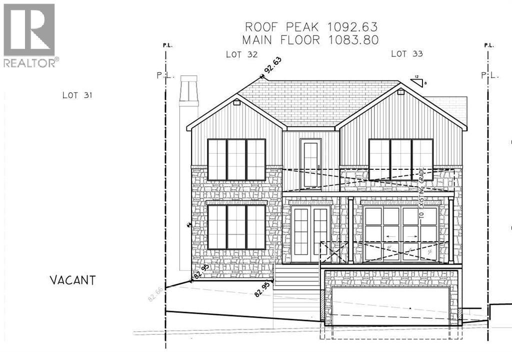
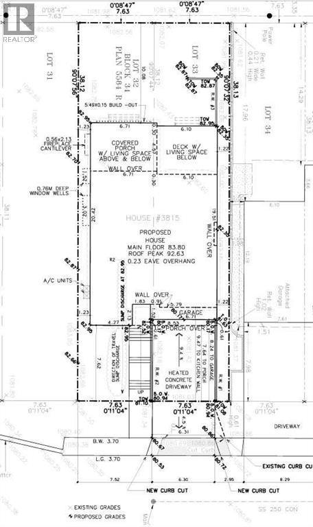
Perfect Elbow Park Building Site (50’ x 125’)! Expansive unobstructed views out the front of the property on a quiet Upper Elbow Park cul de sac. Beautiful sunny west back yard with no thru traffic on rear paved laneway. Lot is fully cleared and ready to go. Start the construction of your dream home right away. Vendor has an approved Development Permit for 4,240 sq. ft. four-bedroom residence with attached four car garage (5,800 sq. ft. incl. basement). This is a bring-your-own-builder sale for the lot and approved DP only—not a completed build. A rare chance to secure a premium inner-city parcel with plans approved and months of design and City of Calgary DP approvals already completed. Please inquire for more information on existing plans if you are interested or design your dream home this winter so you are ready for Spring construction. Do not miss this opportunity! (id:6769)

Quick Stats

Key Home Data

0
BATH(S)
BED(S)
Contact for
SQFT
YES
SHOWING AVAILABLE
Property Type:
Vacant Land
Home Ownership:
Freehold

Payment Calculator

Calculate your monthly mortgage payment.

Mortgage Amount
$
Amortization
years
Payment Freq.
Interest Rate
%
Calculating...

All About the Details

See specific details below.

Neighbourhood Statistics

Get to know your neighbourhood.

Similar Properties

Other properties you might like.

Search by Keyword:
1

Request a Showing

Have questions about this property?

Chat Now

Contact Miranda Moser
About This Property.


Office: 403-470-0021