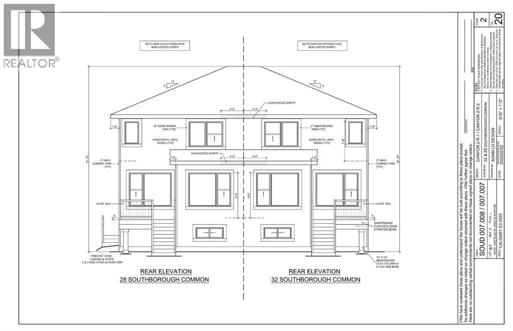
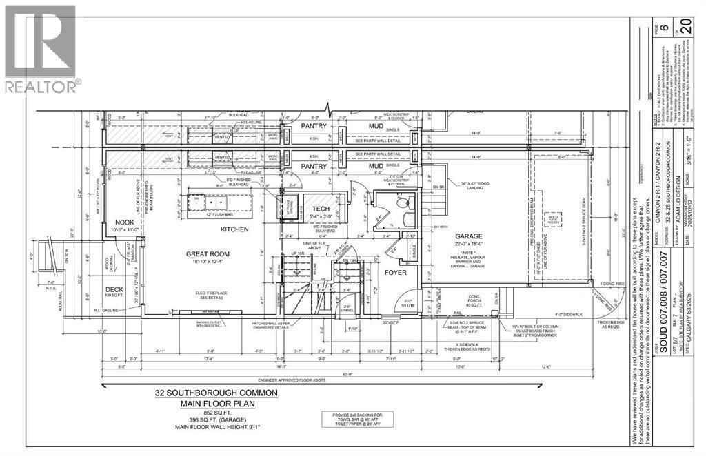
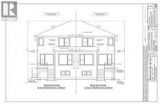
32 Southborough Common

Offered at: $649,900

MLS®: A2273654

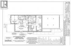
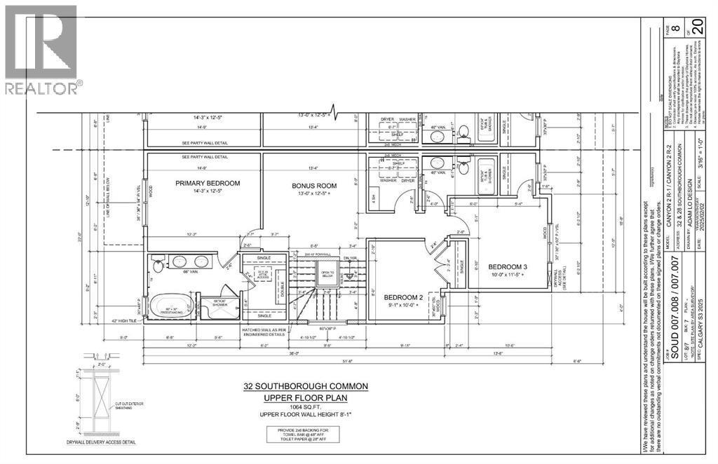
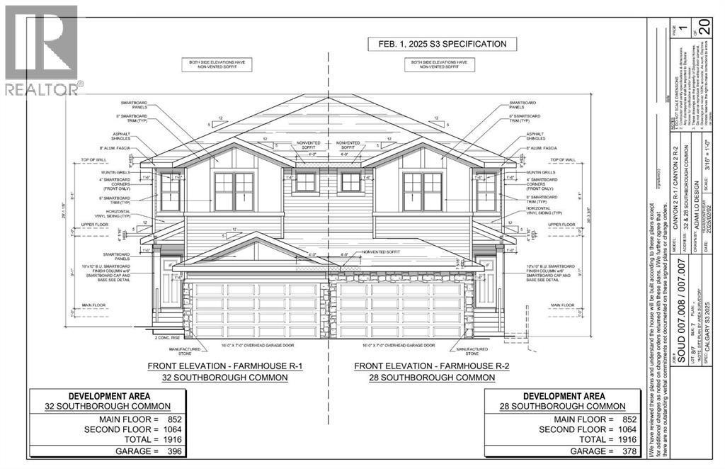
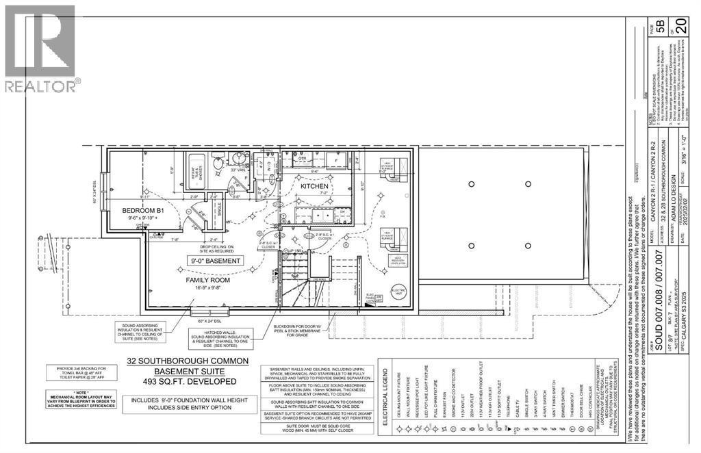
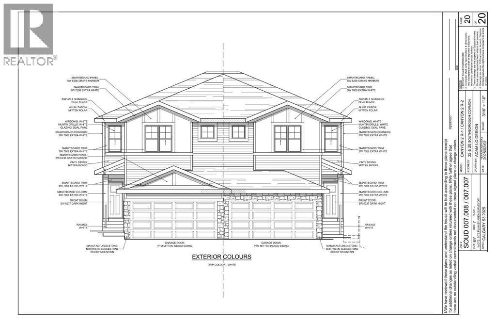
This exceptional half duplex in Cochrane's rapidly developing Southbow Landing community is a strategic investment, uniquely designed for both premium family living and significant financial advantage, while adhering strictly to a modern, concise, and clear standard. The main floor opens with a welcoming foyer, leading into a bright, open-concept layout defined by durable, contemporary finishes. The core of the home is the functional kitchen, typically featuring an island and ample prep space, which flows naturally into the casual nook and the spacious Great Room, creating an ideal area for daily life and entertaining. Efficiency is maximized by the crucial walk-through pantry connecting the kitchen to the convenient mudroom. Moving upstairs, the floor plan is dedicated to rest and privacy, highlighted by the Primary Bedroom retreat, which boasts a generous 5-piece ensuite bathroom ( with dual sinks) and a walk-in closet. The upper level is completed by two additional well-proportioned bedrooms—one of which includes its own walk-in closet—and a 4-piece secondary bathroom. The true distinguishing feature of this property, however, lies in the lower level: a fully finished and professionally legal secondary suite. This self-contained, income-generating unit is positioned as a powerful mortgage helper or an excellent option for multi-generational living, featuring its own additional spacious bedroom, a full bathroom, a complete second kitchen, and a private family room, offering independence and a strong return on investment within a highly desirable community close to pathways, parks, and all of Cochrane's amenities. (id:6769)

Quick Stats

Key Home Data

4
BATH(S)
4
BED(S)
1926
SQFT
YES
SHOWING AVAILABLE
Property Type:
Single Family
Home Ownership:
Freehold

Payment Calculator

Calculate your monthly mortgage payment.

Mortgage Amount
$
Amortization
years
Payment Freq.
Interest Rate
%
Calculating...

All About the Details

See specific details below.

Neighbourhood Statistics

Get to know your neighbourhood.

Similar Properties

Other properties you might like.

Search by Keyword:
« prev 1 2 3 4 5 398 399 400 401 402 next »

Request a Showing

Have questions about this property?

Chat Now

Contact Miranda Moser
About This Property.


Office: 403-470-0021

Please enter a valid first name and last name, e.g., John Smith.