230 Yorkville Boulevard Southwest

Offered at: $680,990

MLS®: A2273638

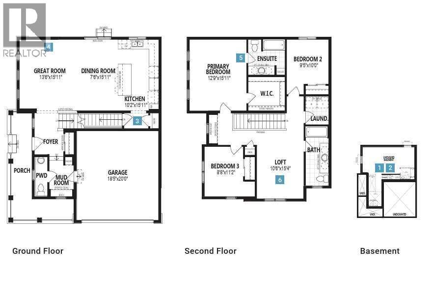
The Monarch was uniquely designed to reimagine livability, with shorter hallways, brighter windows, an oversized quartz kitchen island, and a charming open concept main floor. Featuring a dream wrap-around veranda, large and plentiful windows to enjoy the natural light and all the extra space of a neighbourhood corner lot. Create your own private escape in the upper loft. Escape to your primary bedroom with a walk-in closet built for 2 and ensuite. Space will never be an issue with bedrooms 2 and 3 each having their own large closets. A separate side entrance and 9' foundation have been added to your benefit for any potential future basement development plans. 8 Solar panels are a standard inclusion on all Mattamy homes. *Photos & virtual tour are representative. (id:6769)

Quick Stats

Key Home Data

3
BATH(S)
3
BED(S)
1959
SQFT
YES
SHOWING AVAILABLE
Property Type:
Single Family
Home Ownership:
Freehold

Payment Calculator

Calculate your monthly mortgage payment.

Mortgage Amount
$
Amortization
years
Payment Freq.
Interest Rate
%
Calculating...

All About the Details

See specific details below.

Neighbourhood Statistics

Get to know your neighbourhood.

Similar Properties

Other properties you might like.

Search by Keyword:
« prev 1 2 3 4 5 304 305 306 307 308 next »

Request a Showing

Have questions about this property?

Chat Now

Contact Miranda Moser
About This Property.


Office: 403-470-0021

Please enter a valid first name and last name, e.g., John Smith.