3511 42 Street Southwest

Offered at: $1,024,900

MLS®: A2270058

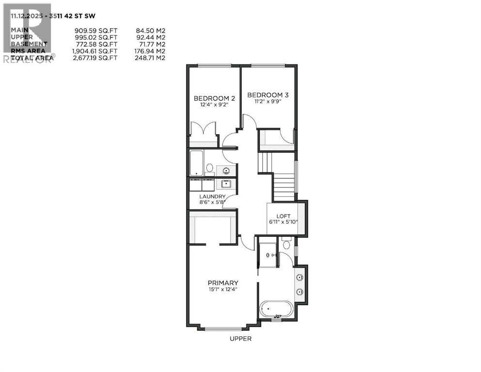
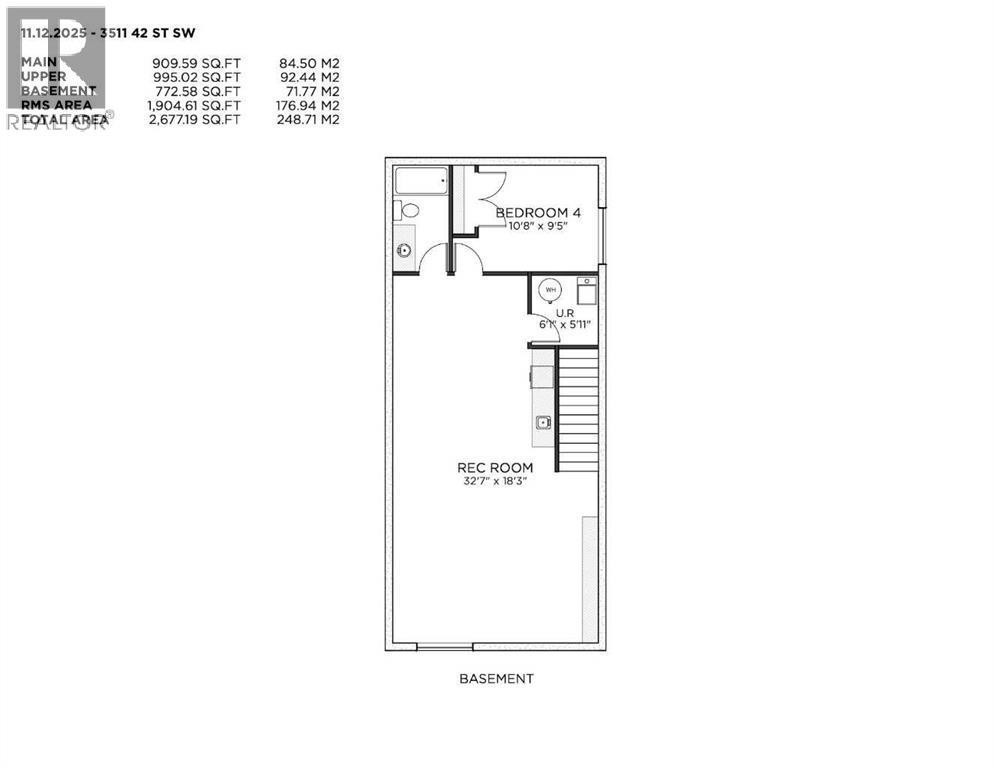
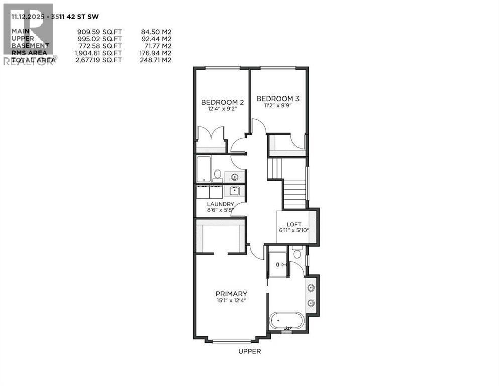
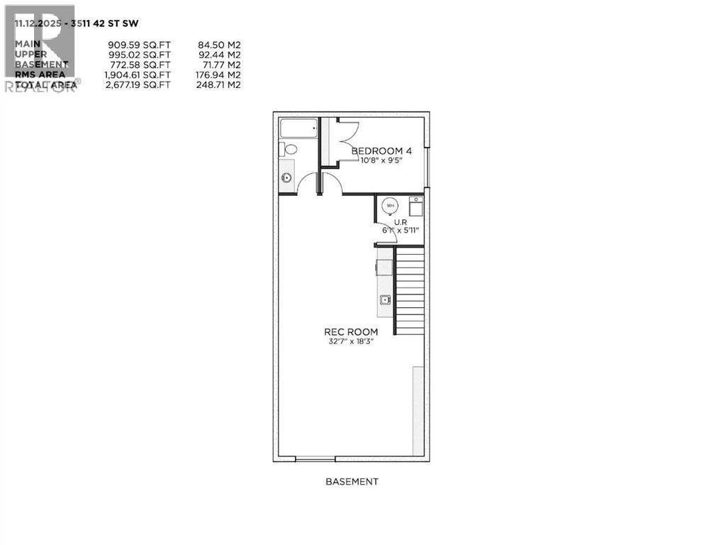
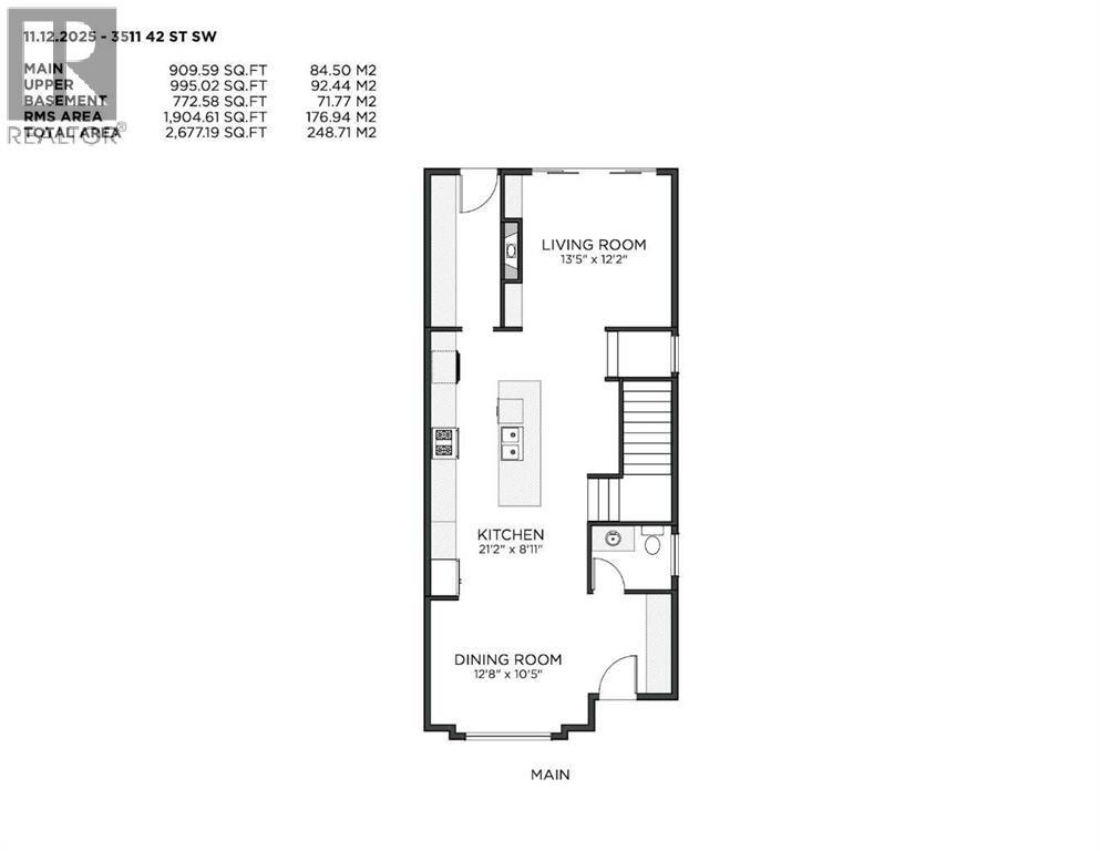
Timeless design, modern comfort, and everyday function come together on a quiet tree-lined street in this stunning new home in GLENBROOK. With expansive windows, warm natural materials, and elevated finishes throughout, it’s crafted for family living in one of Calgary’s most established neighbourhoods. Step in from the covered entry to a bright foyer with sight lines across the open main floor, where light oak hardwood carries seamlessly through the principal rooms. The front dining room is anchored by a custom feature wall, setting the tone for the thoughtful millwork found throughout. An elevated powder room greets you upon entering & provides privacy & convenience through a hidden door. At the heart of the home, the chef-inspired kitchen blends beauty with purpose—two full pantries, crisp white uppers over matching oak lowers, a striking waterfall quartz island, exposed beams and professional KitchenAid appliances including a flat gas cooktop, built-in wall oven, and French-door fridge. Clean lines, elegant lighting, and generous prep space make this a true culinary hub. A well-designed butlers pantry & mudroom with custom built-ins keeps everyday essentials organized, The floor plan flows naturally into the inviting living room, where custom coffered ceilings & built-ins frame a cozy gas fireplace & create the perfect space to unwind or gather with friends & family. Large windows and an 8’ sliding patio door pull in west light and open directly to the backyard for easy indoor/outdoor living. Step outside to a sun-soaked west-facing backyard, complete with a large rear deck and BBQ gas line, ready for late summer evenings & weekend gatherings. A double garage plus a striking exterior finished in stucco & Hardie-board siding complete this exceptional property. Head up the alluring hardwood stairs to find more of the same hardwood floors & a thoughtfully placed built-in desk that creates the perfect homework zone or dedicated home office. A spacious laundry roo m with quartz countertop, pre-wash sink, plus extra storage ensures the second floor is as practical as it is comfortable.Retreat to the serene primary suite, where vaulted ceilings lift the space and morning sun pours through oversized windows. The ensuite reads like a private spa, offering a massive walk-in shower with body jets, (roughed in steam shower), double sinks, a deep free-standing soaker tub, & beautifully curated tile throughout. A custom walk-in closet completes the sanctuary. Two additional bedrooms sit down the hall. One even features its own custom built in closet.The lower level flexes effortlessly with family life—an expansive Rec room with custom built-in TV wall, a generous flex/rec area with a full wet bar, plus an additional bedroom and full bath, ideal for guests, teens, or extended family. Located close to schools, parks, playgrounds, shopping, transit, & major routes—offering a perfect blend of community charm & everyday convenience. (id:6769)

Quick Stats

Key Home Data

4
BATH(S)
4
BED(S)
1905
SQFT
YES
SHOWING AVAILABLE
Property Type:
Single Family
Home Ownership:
Freehold

Payment Calculator

Calculate your monthly mortgage payment.

Mortgage Amount
$
Amortization
years
Payment Freq.
Interest Rate
%
Calculating...

All About the Details

See specific details below.

Neighbourhood Statistics

Get to know your neighbourhood.

Similar Properties

Other properties you might like.

Search by Keyword:
« prev 1 2 3 4 5 37 38 39 40 41 next »

Request a Showing

Have questions about this property?

Chat Now

Contact Miranda Moser
About This Property.


Office: 403-470-0021

Please enter a valid first name and last name, e.g., John Smith.