921 Radford Road Northeast

Offered at: $925,000

MLS®: A2261005

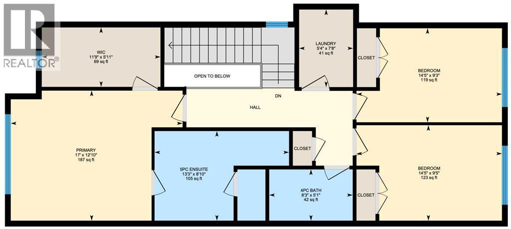
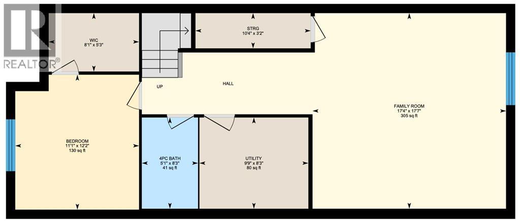
This thoughtfully designed 2-storey semi-detached infill in the heart of Renfrew combines style, function, and value with over 2,500 sq. ft. of developed living space, 4 spacious bedrooms (3 above grade), and 3.5 bathrooms. Offering quality finishes throughout and a sought-after location, this is the perfect opportunity to enjoy modern inner-city living at an attractive price point. The main floor showcases 10-ft ceilings, engineered hardwood flooring, and an open, bright layout ideal for both family living and entertaining. A formal dining area is perfect for hosting, while the living room features a sleek gas fireplace and oversized sliding glass doors that open to the backyard. The chef-inspired kitchen impresses with stainless steel appliances, custom 2-tone cabinetry, quartz countertops, and a large island with bar seating. At the rear, a tiled mudroom provides built-in millwork and direct access to the double detached garage. Upstairs, you’ll find 3 generous bedrooms, a full bathroom, and the convenience of a second-floor laundry room. The luxurious primary suite offers a large walk-in closet and a spa-like 5-piece ensuite complete with a deep soaker tub, dual vanities, and an oversized glass shower—your private retreat after a long day. The fully developed basement extends the living space with a large rec room that’s perfect for movie nights or a home gym. A spacious fourth bedroom and another full bathroom make it ideal for guests or growing families. Nestled in the vibrant community of Renfrew, this home offers quick access to schools, parks, shopping, restaurants, and downtown Calgary. If you’re looking for a move-in ready inner-city home with modern finishes, spacious living, and unbeatable value—this is the one. (id:6769)

Quick Stats

Key Home Data

4
BATH(S)
4
BED(S)
1884
SQFT
YES
SHOWING AVAILABLE
Property Type:
Single Family
Home Ownership:
Freehold

Payment Calculator

Calculate your monthly mortgage payment.

Mortgage Amount
$
Amortization
years
Payment Freq.
Interest Rate
%
Calculating...

All About the Details

See specific details below.

Neighbourhood Statistics

Get to know your neighbourhood.

Similar Properties

Other properties you might like.

Search by Keyword:
« prev 1 2 3 4 5 150 151 152 153 154 next »

Request a Showing

Have questions about this property?

Chat Now

Contact Miranda Moser
About This Property.


Office: 403-470-0021