1729 31 Street Southwest

Offered at: $868,000

MLS®: A2255993

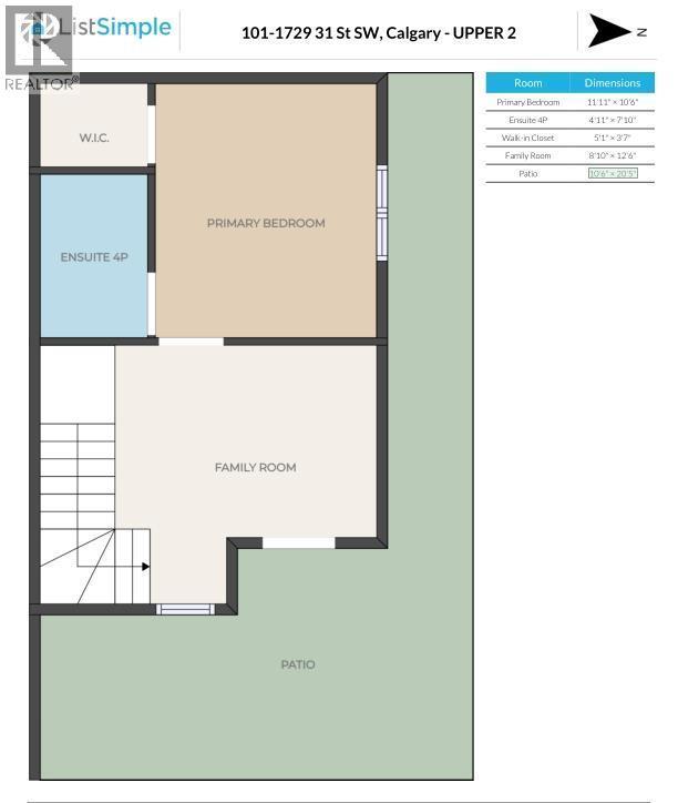
Experience modern urban living in this brand-new townhouse in the highly desirable community of Shaganappi!Situated in a prime inner-city location, you’re just a 7-minute walk to EB Westbrook CTrain Station, providing quick access to downtown and beyond. Nearby, enjoy the Shaganappi Point Golf Course, as well as shopping and dining options including Walmart, Shoppers Drug Mart, McDonald’s, and more.Offering 1,621.3 sq.ft. of thoughtfully designed living space, this 6-bedroom, 4.5-bathroom home is currently under construction, with an estimated possession in November 2025 (negotiable). This is a rare opportunity to own a never-lived-in property in one of Calgary’s most convenient and established neighborhoods.Legal Secondary Suite | Rental Potential | Multi-Generational FlexibilityOne of the biggest highlights of this property is the fully legal secondary suite, offering separate entrance, kitchen, bathroom, laundry, and living area. This space can serve as an ideal setup for multi-generational living, a guest suite, or even a private home office or studio. The suite’s independent design ensures privacy and functionality for both you and your tenants. It comes with in floor heating in the basement.The main floor features a bright, open-concept layout where the kitchen, dining, and living areas flow seamlessly together — perfect for both relaxed daily living and entertaining guests. The home showcases luxury finishes throughout, including premium cabinetry, designer fixtures, and high-quality flooring that elevate the space.On the second floor, you’ll find three well-sized bedrooms and two full bathrooms, ideal for family members, guests, or a dedicated home office. The third floor is a private retreat dedicated to the primary suite and bonus room, complete with a walk-in closet and a spacious ensuite. This top-floor layout provides maximum privacy and an elevated sense of space.Enjoy outdoor living on the impressive 10’6” × 20’5” patio, perfect for summer gath erings and BBQs. The exterior design combines modern woodboard and stucco for stylish curb appeal. Low condo fees make ownership even more attractive.Don’t miss this chance to own a brand-new, luxury-finished townhouse with a legal secondary suite — combining rental potential, lifestyle flexibility, and long-term value — all within walking distance to transit, golf, shopping, and restaurants in the heart of Shaganappi.Contact your Realtor today for more details and to secure your new address! (Talk to your accountant about the GST new housing rebate.) (id:6769)

Quick Stats

Key Home Data

5
BATH(S)
6
BED(S)
1621
SQFT
YES
SHOWING AVAILABLE
Property Type:
Single Family
Home Ownership:
Condominium/Strata

Payment Calculator

Calculate your monthly mortgage payment.

Mortgage Amount
$
Amortization
years
Payment Freq.
Interest Rate
%
Calculating...

All About the Details

See specific details below.

Neighbourhood Statistics

Get to know your neighbourhood.

Similar Properties

Other properties you might like.

Search by Keyword:
« prev 1 2 3 4 5 177 178 179 180 181 next »

Request a Showing

Have questions about this property?

Chat Now

Contact Miranda Moser
About This Property.


Office: 403-470-0021