523 Northmount Drive Northwest

Offered at: $399,000

MLS®: A2258540

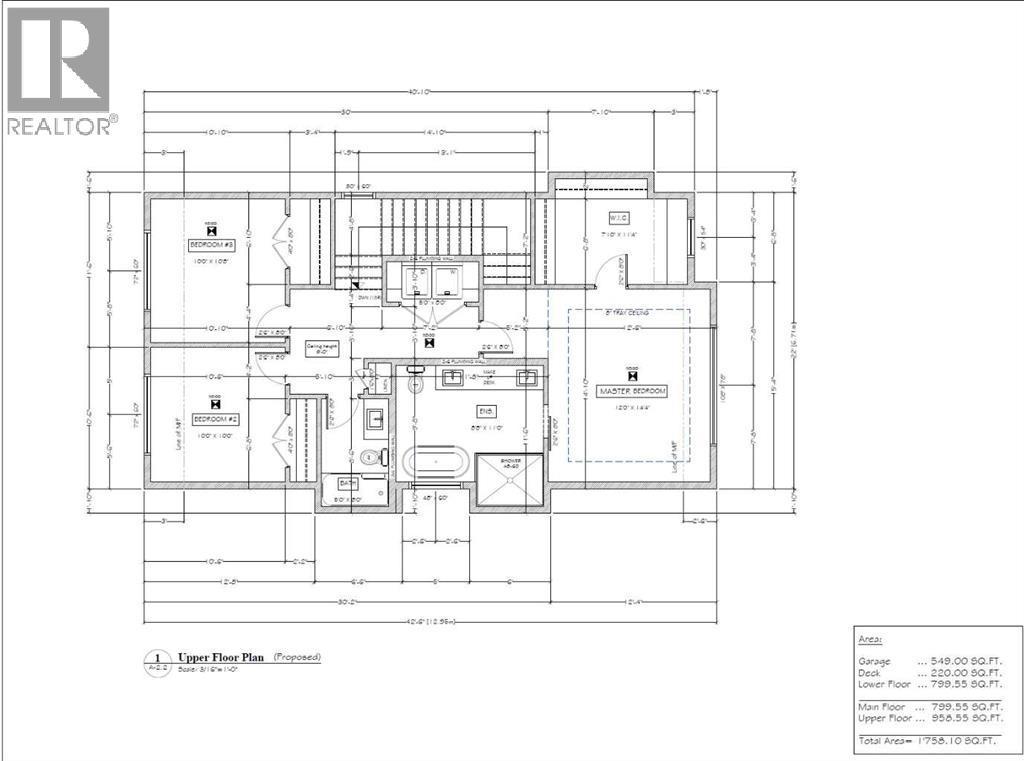
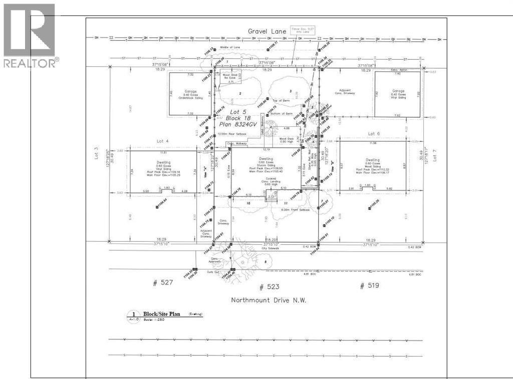
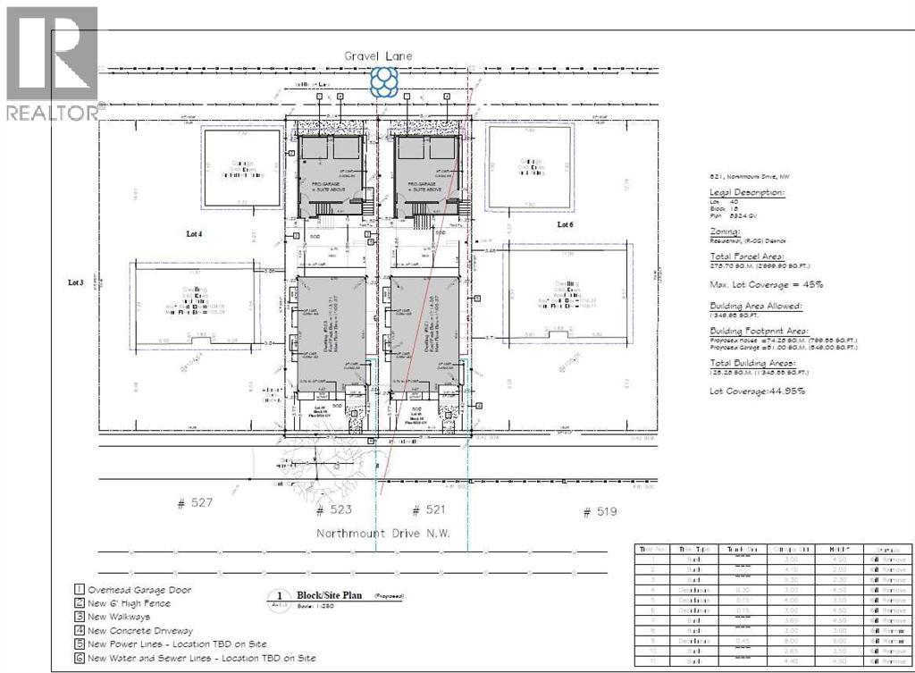
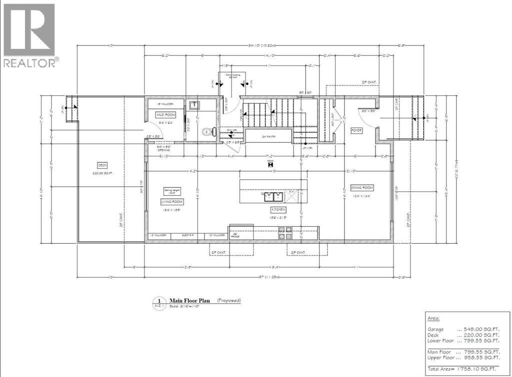
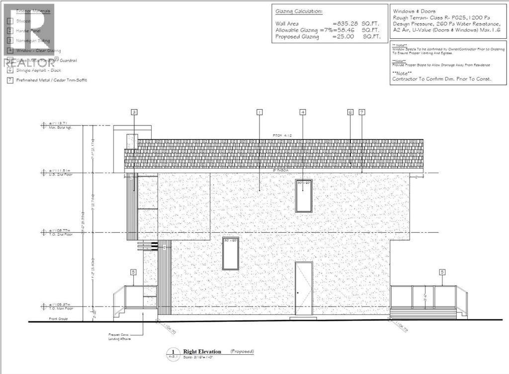
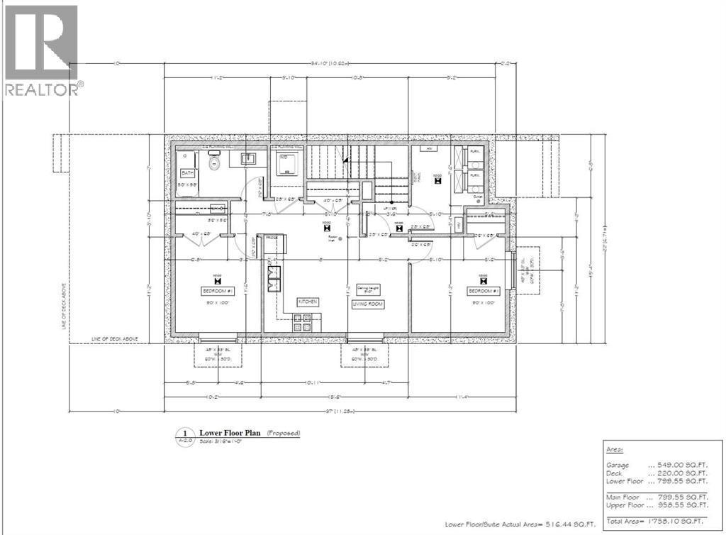
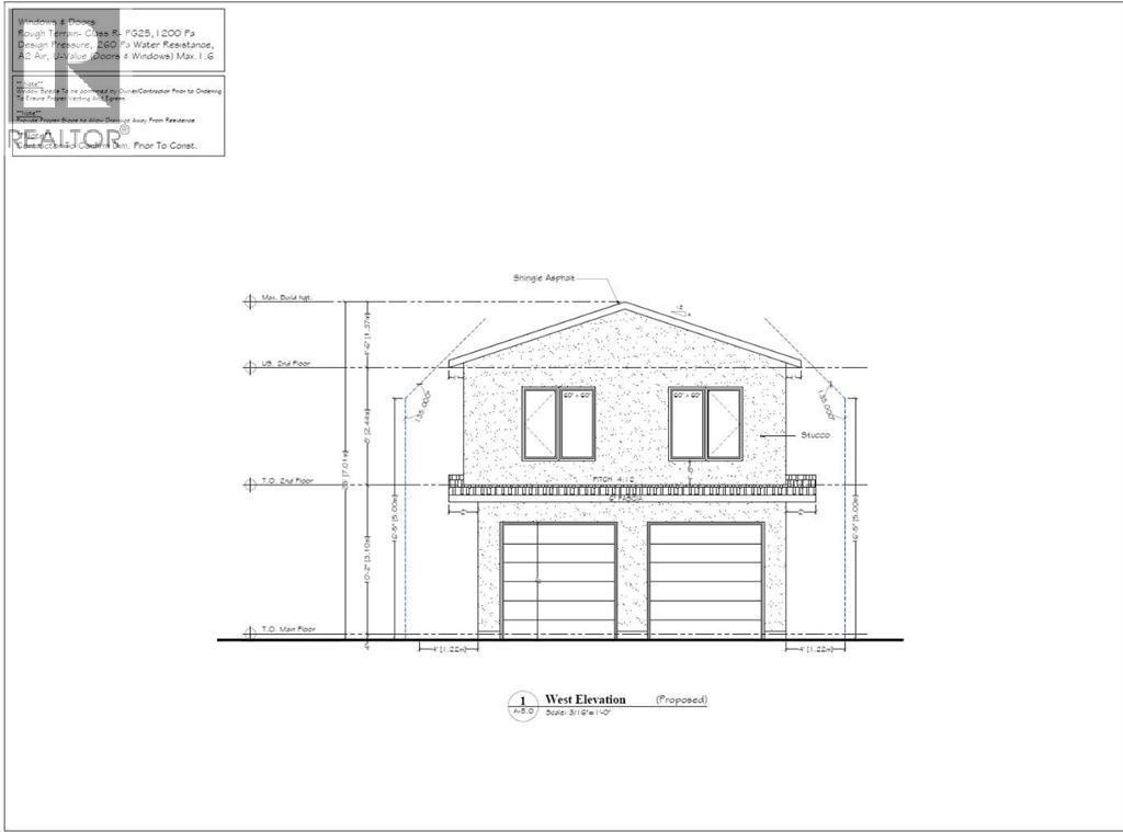
Development permits approved and available for potential buyers. This property has been designed for 3 dwellings, a legal basement suite and a legal carriage house suite on top of the garage. Neighboring property 521 is also for sale. (id:6769)

Quick Stats

Key Home Data

0
BATH(S)
BED(S)
Contact for
SQFT
YES
SHOWING AVAILABLE
Property Type:
Vacant Land
Home Ownership:
Freehold

Payment Calculator

Calculate your monthly mortgage payment.

Mortgage Amount
$
Amortization
years
Payment Freq.
Interest Rate
%
Calculating...

All About the Details

See specific details below.

Neighbourhood Statistics

Get to know your neighbourhood.

Similar Properties

Other properties you might like.

Search by Keyword:
« prev 1 2 3 4 next »

Request a Showing

Have questions about this property?

Chat Now

Contact Miranda Moser
About This Property.


Office: 403-470-0021