2611 35 Street Southwest

Offered at: $1,399,998

MLS®: A2248051

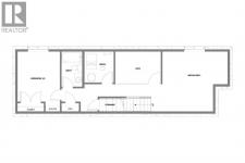
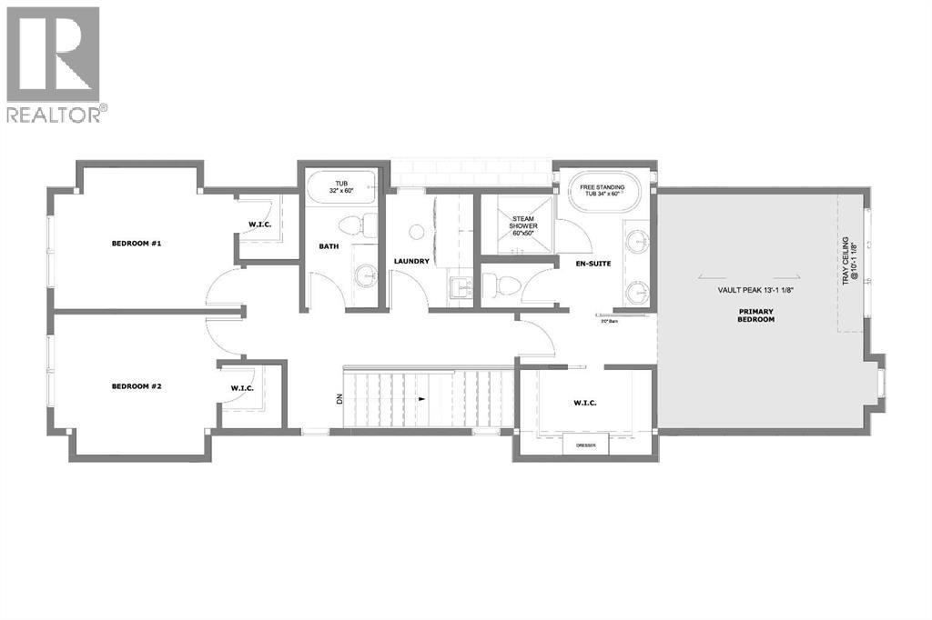
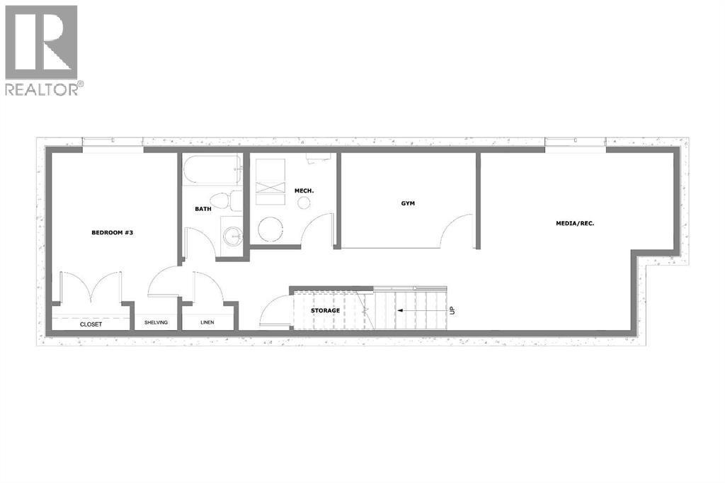
This brand-new DETACHED INFILL in KILLARNEY pairs modern architecture with real-life function, traits you’ve grown to expect from Moon Homes! Light pours in through large windows, finishes are clean and timeless, and the floorplan keeps everyday living simple.Step into a welcoming foyer and a front dining space that fits a long table for gatherings. The centerpiece kitchen is where form meets function: upscale wall panelling, a generous island with QUARTZ counters, FULL-HEIGHT CABINETRY, a BUILT-IN PANTRY for the bulk items and small appliances, and a sleek appliance package anchored by a GAS COOKTOP. It’s a layout that works for weeknight meals and weekend prep alike, keeping lines of sight open to both the dining room and the rear living area. At the back, the great room is relaxed and inviting, centred on a contemporary fireplace wall that’s ready for your media setup, with large 10-ftx8-ft bi-parting patio doors to the yard so the space stays bright year-round. A well-placed POWDER ROOM sits off the staircase – easy access, out of view – and side mudroom is exactly what you want after a run to the store or a rainy dog walk: a practical side entry with a BUILT-IN CLOSET direct from the exterior path so traffic doesn’t cut through the main living area.Upstairs, the primary suite takes the quiet front of the home and turns it into a true retreat. The bedroom reads calm and airy with a VAULTED CEILING, while the ensuite brings SPA ENERGY and a STEAM SHOWER – perfect for cold mornings and post-workout recovery. A proper WALK-IN CLOSET handles day-to-day rotation and seasonal storage without crowding the bedroom. Down the hall, two bright secondary bedrooms both include WALK-IN CLOSETS, giving kids or guests real storage (and fewer dressers). The MAIN 4-PC BATH is modern and streamlined, finished with durable tile and a full-depth tub. A convenient UPPER-LEVEL LAUNDRY keeps baskets off the stairs and speeds up weekend chores.The lower level is designed to flex a s life changes. A large family room is ready for movie marathons or a game table, while the GLASS-WALLED GYM SPACE gives you a dedicated zone for workouts without feeling boxed in. There’s also a comfortable fourth bedroom that adds BUILT-IN SHELVING alongside the closet – great for books, collectibles, or a tidy work-from-home setup – and a full bathroom to serve guests. Storage and mechanical are neatly consolidated, so the main area stays open and usable.The Killarney location truly brings it all together! You’re minutes to 17 Ave SW for coffee, dinner, and weekend errands, with WESTBROOK LRT simplifying the commute. Outdoor time is easy at neighbourhood parks, the KILLARNEY AQUATIC & FITNESS CENTRE, and the nearby SHAGANAPPI GOLF COURSE. School options include KILLARNEY SCHOOL (K–6) and HOLY NAME (K–6 FRENCH IMMERSION), with straightforward access to junior-high pathways and ERNEST MANNING HIGH SCHOOL. It’s the inner-city lifestyle – walkable, connected, and ready for real life! (id:6769)

Quick Stats

Key Home Data

4
BATH(S)
3
BED(S)
1962
SQFT
YES
SHOWING AVAILABLE
Property Type:
Single Family
Home Ownership:
Freehold

Payment Calculator

Calculate your monthly mortgage payment.

Mortgage Amount
$
Amortization
years
Payment Freq.
Interest Rate
%
Calculating...

All About the Details

See specific details below.

Neighbourhood Statistics

Get to know your neighbourhood.

Similar Properties

Other properties you might like.

Search by Keyword:
« prev 1 2 3 4 5 10 11 12 13 14 next »

Request a Showing

Have questions about this property?

Chat Now

Contact Miranda Moser
About This Property.


Office: 403-470-0021