4150 109 Avenue Northeast

Offered at: $32

MLS®: A2254588

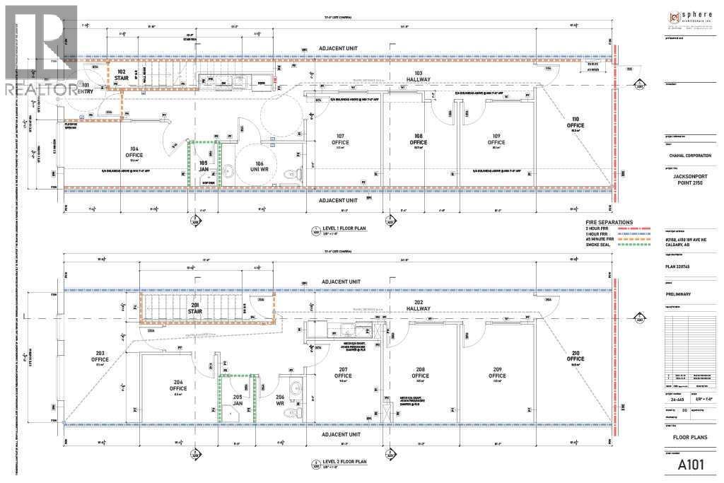
New development in Jacksonport. Brand New office space featuring 4 private offices, a washroom, and a kitchenette. Located on Country Hills Blvd with over 20000 vehicles per day. DIRECT ACCESS from Country Hills Blvd. Located close to communities of City Scape Cornerstone, Skyview Ranch, Saddle ridge, Savana. Images are from a rendering. (id:6769)

Quick Stats

Key Home Data

0
BATH(S)
BED(S)
1350
SQFT
YES
SHOWING AVAILABLE
Property Type:
Office

Payment Calculator

Calculate your monthly mortgage payment.

Mortgage Amount
$
Amortization
years
Payment Freq.
Interest Rate
%
Calculating...

All About the Details

See specific details below.

Neighbourhood Statistics

Get to know your neighbourhood.

Similar Properties

Other properties you might like.

Search by Keyword:
« prev 1 2 3 4 5 11 12 13 14 15 next »

Request a Showing

Have questions about this property?

Chat Now

Contact Miranda Moser
About This Property.


Office: 403-470-0021