6915 Ranchview Drive Northwest

Offered at: $359,500

MLS®: A2240382

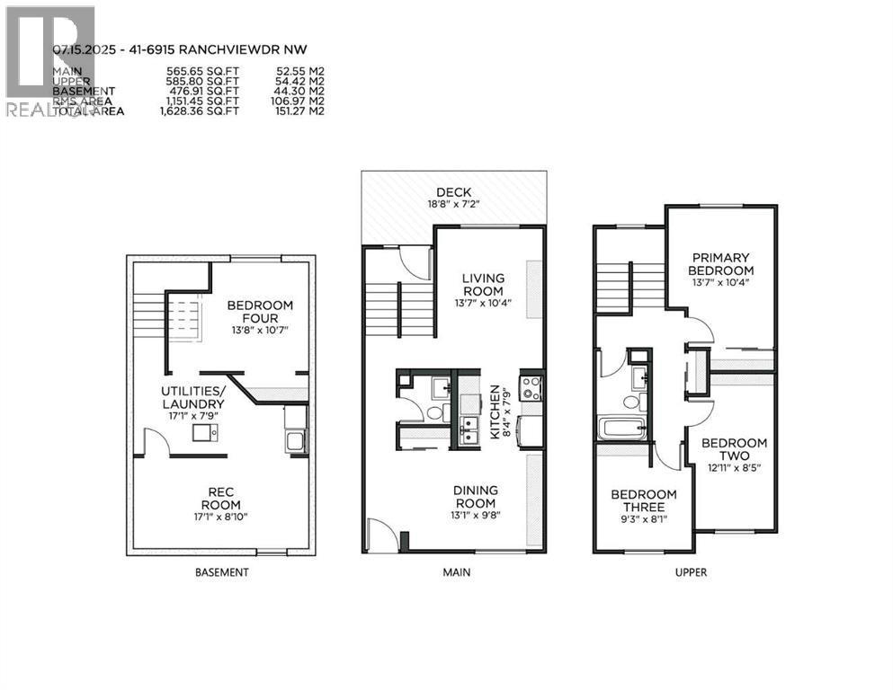
Welcome to this beautifully maintained 4-bedroom, 1.5-bathroom townhome located in the quiet and family-friendly community of Ranchlands Meadows. With over 1600 sq. ft. of living space, this bright and inviting home offers the perfect blend of function and comfort, ideal for first-time buyers, growing families, or anyone seeking a low-maintenance lifestyle in a convenient NW location. Step inside to find a spacious main floor featuring an airy living room filled with natural light, an updated kitchen with modern finishes, and a generous dining area—perfect for everyday meals or entertaining guests. A convenient half bath completes the main level. Upstairs, you'll find a large primary bedroom with a custom closet system, two additional bedrooms, and a well-appointed 4-piece bathroom. The fully developed lower level offers a versatile fourth bedroom, ideal as a home office, guest room, or creative studio. A large rec room/multi-purpose space and laundry area round out the basement level. The convenient back entrance leads out to the private yard with a deck and raised garden boxes—a rare find in a townhome. One assigned parking stall with power is included, with visitor parking nearby. Condo fees include access to a recreation center with amenities, adding value and convenience to your everyday life. Located minutes to Crowfoot Shopping Centre, Safeway, Co-op, and Costco. Nearby schools include: Ranchlands School, St. Rita School, and Robert Thirsk High School. Parks, playgrounds, off-leash dog areas, and tennis courts close by. Quick access to John Laurie Blvd, Crowchild Trail, and Stoney Trail for easy commuting. Short distance to C-Train stations and YMCA at Crowfoot. This turnkey townhome checks all the boxes—comfort, convenience, and community. Don’t miss your chance to call Ranchlands Meadows home! (id:6769)

Quick Stats

Key Home Data

2
BATH(S)
4
BED(S)
1151
SQFT
YES
SHOWING AVAILABLE
Property Type:
Single Family
Home Ownership:
Condominium/Strata

Payment Calculator

Calculate your monthly mortgage payment.

Mortgage Amount
$
Amortization
years
Payment Freq.
Interest Rate
%
Calculating...

All About the Details

See specific details below.

Neighbourhood Statistics

Get to know your neighbourhood.

Similar Properties

Other properties you might like.

Search by Keyword:
« prev 1 2 3 4 5 473 474 475 476 477 next »

Request a Showing

Have questions about this property?

Chat Now

Contact Miranda Moser
About This Property.


Office: 403-470-0021